Расположение
Новосибирск, Дзержинский район
Улица Кошурникова
Метро Золотая Нива
Микрорайон Золотая Нива
Жилой комплекс Золотая Нива
Местоположение
Дом
Квартира
Контакты
- Новосибирск
- Дзержинский район
- Улица Кошурникова
- Метро Золотая Нива
- Микрорайон Золотая Нива
- Жилой комплекс Золотая Нива
- Этаж 3/23
- Год постройки 2020
- Все квартиры в этом доме
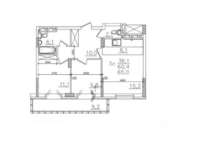
- Общая площадь 60.9 м2
- Жилая площадь 0 м2
- Дом
- Этаж: 3/23
- Год постройки: 2020
Квартира
- Общая площадь: 60.9 м2
- Жилая площадь: 0 м2
Одно из лучших предложений по цене за квадрат в современных ЖК в данной локации! Бонус для покупателя - оплата дизайн проекта в подарок! Вашему вниманию предлагается просторная трехкомнатная квартира-студия в новом кирпичном доме комфорт класса - ЖК Золотая Нива. Функциональная планировка: просторная кухня-гостиная, уютная спальня и кабинет/детская. Отличное пространство для жизни и работы. Большая остекленная лоджия. В шаговой доступности от дома есть вся необходимая инфраструктура: школы, детские сады, аптеки, спортивные клубы и торговые центры, салон красоты, школа танцев, кофейня, продуктовый магазины . Удобная транспортная развязка позволяет быстро добраться до любой точки города. Станция метро Золотая Нива в 8 мин пешком. Облагорожена вся придомовая территория, детская и спортивная площадки, спортивно-оздоровительный комплекс с бассейном на территории. Имеется двухуровневый подземный паркинг. В комплексе работает видеонаблюдение и охрана. Квартира без юридических нюансов, полная стоимость в договоре, без долей, ипотеки и материнского капитала. Приглашаем на просмотр и сделку, вам представлен по-настоящему ценный вариант.