Местоположение
Дом
Квартира
Контакты
- Новосибирск
- Октябрьский район
- Улица Зыряновская
- Метро Речной вокзал
- Микрорайон Восход
- Этаж 1/5
- Год постройки 1960-1970
- Все квартиры в этом доме
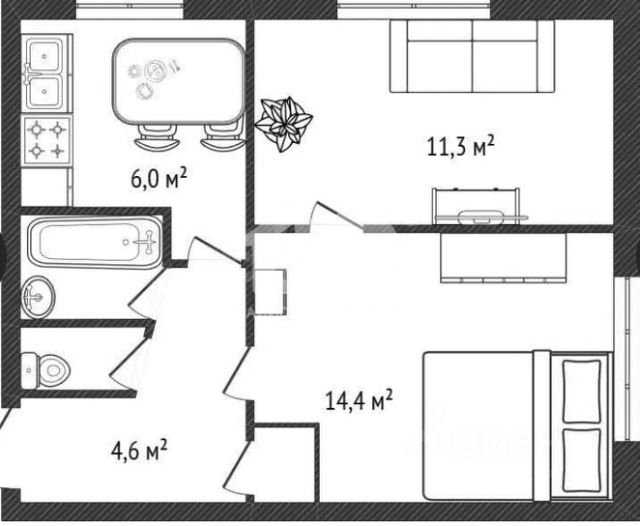
- Общая площадь 39.6 м2
- Жилая площадь 0 м2
- Дом
- Этаж: 1/5
- Год постройки: 1960-1970
Квартира
- Общая площадь: 39.6 м2
- Жилая площадь: 0 м2
Код объекта: 2090807. Вашему вниманию предлагается отличная двухкомнатная квартира в Новосибирске по адресу Зыряновская улица, 119. Этот объект идеально подойдёт тем, кто ищет комфортное жильё в живописном районе города. Квартира расположена на первом этаже пятиэтажного кирпичного дома, построенного в 1968 году. Окна находятся на уровне второго этажа, т. к есть цокольное помещение. Общая площадь составляет 39,6 кв. м, из которых 25,7 кв. м — жилая площадь. Две изолированные комнаты с окнами, выходящими на улицу, создают уютное пространство для жизни. Ремонт выполнен в евростиле, что придаёт квартире современный вид и позволяет новым владельцам сразу заселиться без дополнительных вложений. Сделан свежий ремонт заменены все коммуникации, электрика, полностью переделан пол заменен на ламинат, стены выравнены, заменены радиаторы отопления, натяжные потолки. Кухня площадью 6 кв. м оснащена всем необходимым для комфортного приготовления пищи. Развитая инфраструктура района, в котором расположена квартира, порадует жителей наличием всего необходимого для комфортной жизни. Школа, детский сад, магазины, остановка транспорта. Рядом есть наземная парковка, где можно оставить автомобиль. Станция метро и железнодорожная платформа Речной вокзал. В шаговой доступности Михайловская набережная на которой проходят все городские праздники. Не упустите шанс стать обладателем этой уютной квартиры! Позвоните нам прямо сейчас, чтобы узнать больше и записаться на просмотр. Мы гарантируем безопасную сделку и юридическую поддержку нашим Клиентам. Поможем одобрить ипотеку с сниженной ставкой.