Расположение
Новосибирск, Центральный район
Улица Державина
Метро Березовая роща
Микрорайон Фрунзенский
Жилой комплекс Седьмое небо
Местоположение
Дом
Квартира
Контакты
- Новосибирск
- Центральный район
- Улица Державина
- Метро Березовая роща
- Микрорайон Фрунзенский
- Жилой комплекс Седьмое небо
- Этаж 6/23
- Год постройки 2000-2010
- Все квартиры в этом доме
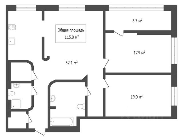
- Общая площадь 116 м2
- Жилая площадь 0 м2
- Агентство Квартирный портал
- Источник Циан
- Дом
- Этаж: 6/23
- Год постройки: 2000-2010
Квартира
- Общая площадь: 116 м2
- Жилая площадь: 0 м2
Агентство Квартирный портал
Источник Циан
Представляем Вашему вниманию уникальную возможность приобрести квартиру премиум-класса, воплощающую гармонию стиля, комфорта и эксклюзивности. Здесь каждый элемент продуман до мелочей, создавая атмосферу настоящего домашнего уюта и утонченного вкуса. Особенности недвижимости - Просторные комнаты: идеальные пропорции позволяют создать пространство, идеально подходящее как для отдыха, так и для приема гостей. - Два санузла: оборудованные современной сантехникой и отделанные высококачественными материалами. - Дорогостоящая встроенная техника: бытовое оборудование мировых брендов обеспечивает комфорт и безопасность. - Камин: настоящий символ тепла и уюта, создающий особую атмосферу. - Роскошь в деталях: дизайнерские решения подчеркнут индивидуальный стиль владельца. - Балкон и кабинет: наслаждайтесь видами города, работая или отдыхая на свежем воздухе. Эта недвижимость станет идеальным выбором для тех, кто ценит качество жизни и стремится окружить себя изысканными вещами. Просторная планировка позволяет свободно расставлять мебель и создавать интерьер своей мечты. А благодаря качественным материалам отделки и функциональному расположению помещений, Вы сможете наслаждаться каждым моментом пребывания дома. Приобретение подобной недвижимости — это инвестиция в будущее, обеспечивающая стабильность и высокий статус своего обладателя. Именно здесь начинается жизнь, наполненная стилем и элегантностью! Приглашаем на просмотр. Возможен торг. stroyfond-10170528