Расположение
Новосибирск, Октябрьский район
Улица Закаменский микрорайон
Метро Березовая роща
Микрорайон Закаменский
Жилой комплекс Закаменский
Местоположение
Дом
Квартира
Контакты
- Новосибирск
- Октябрьский район
- Улица Закаменский микрорайон
- Метро Березовая роща
- Микрорайон Закаменский
- Жилой комплекс Закаменский
- Этаж 6/17
- Год постройки 2024
- Все квартиры в этом доме
- Общая площадь 51 м2
- Жилая площадь 0 м2
- Агентство Анастасия
- Источник Авито
- Дом
- Этаж: 6/17
- Год постройки: 2024
Квартира
- Общая площадь: 51 м2
- Жилая площадь: 0 м2
Агентство Анастасия
Источник Авито
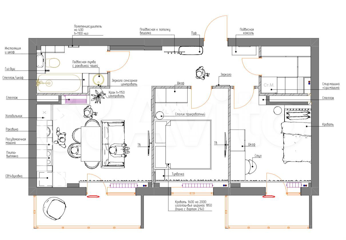
Заезжай и живи — 3к квартира с новым ремонтом и мебелью | 5 мин Сибирский Молл! Сейчас на этапе ремонта можно забрать за 12млн, срок готовности квартиры -05.04.2026. Современная квартира, где уже всё продумано за вас. Иногда квартира — это просто стены. А иногда — пространство, в которое хочется вернуться после рабочего дня. Эта квартира создавалась именно с такой идеей. Здесь удобно жить уже с первого дня. — отдельная спальня. — вторая комната для детской или кабинета. — просторная кухня-гостиная, где приятно проводить вечера. — современная ванная комната — отдельная гардеробная. Интерьер выполнен в современном спокойном стиле, который легко дополнить своими деталями. Важное преимущество: квартира полностью укомплектована — вся мебель и декор остаётся новым владельцам. Это означает, что после покупки вы можете сразу заехать и жить, не тратя время и сотни тысяч рублей на обустройство. Ремонт выполнен с нуля в современном стиле. Использованы нейтральные и актуальные решения, которые легко подойдут под любой интерьер. Дом расположен в удобном районе города. Всего 5 минут до Трц Сибирский Молл — магазины, рестораны, кинотеатр и всё, что нужно для комфортной жизни рядом. Новый ремонт — без лишних вложений. Если вы ищете квартиру, где уже всё сделано и можно просто начать новую главу жизни, эта квартира для вас! Звоните, чтобы записаться на просмотр. В подарок за покупку дарим сертификат в Hoff Без обременений. Мебель и техника остаются. Хорошая транспортная доступность: до метро можно дойти пешком, у дома автобусная остановка. Развитая инфраструктура: рядом магазин, школа, детский сад. Кухня остаётся. Один взрослый собственник.