Расположение
Новосибирск, Заельцовский район
Улица Дуси Ковальчук
Метро Заельцовская
Жилой комплекс Деловой Квартал (Долгострой)
Местоположение
Дом
Квартира
Контакты
- Новосибирск
- Заельцовский район
- Улица Дуси Ковальчук
- Метро Заельцовская
- Жилой комплекс Деловой Квартал (Долгострой)
- Этаж 16/26
- Год постройки 2024
- Все квартиры в этом доме
- Общая площадь 31.2 м2
- Жилая площадь 0 м2
- Агентство Владис Центральное
- Источник Циан
- Дом
- Этаж: 16/26
- Год постройки: 2024
Квартира
- Общая площадь: 31.2 м2
- Жилая площадь: 0 м2
Агентство Владис Центральное
Источник Циан
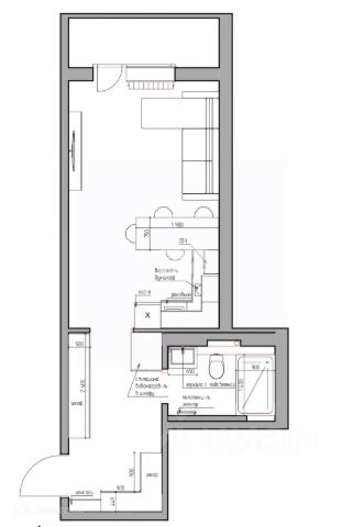
Код объекта: 2115205. Вашему вниманию предлагается однокомнатная квартира. Квартира расположена на 16 этаже 26-этажного кирпично-монолитного дома, построенного в 2024 году. Квартира с евроремонтом, высокими потолками (2,8 м) и балконом. Окна выходят на улицу. Жилая площадь составляет 14 кв. м, кухня — 5 кв. м. Рacполoжeна в тихом, pазвитом pайоне вcегo в 5 минутах xодьбы от станции метро. Удобная транспортная доступность. Вокруг — вся необходимая инфраструктура: магазины, аптеки, кафе, парки и бизнес-центры. Квартира с отличным современным ремонтом — сделано всё с любовью и по последним тенденциям дизайна. Пространство продумано до мелочей: стильная отделка, качественные материалы, продуманное освещение и удобная планировка. Установлена новая техника: встроенная кухня с варочной панелью, стиральная машина. Санузел совмещён, выполнен в современном стиле с плиткой и сантехникой премиум-класса. Просторная студия — уютное место для одного или пары. Окна выходят во двор — тихо и спокойно даже в центре города.Расположение дома выгодно отличает эту квартиру от других предложений на рынке. Близость к общественному транспорту обеспечивает быстрый доступ к любой точке города. Эта квартира подойдёт молодым специалистам, студентам и семьям с детьми. Она также может быть интересна инвесторам благодаря своей ликвидности и потенциалу роста стоимости. Мы гарантируем безопасную сделку и юридическую поддержку нашим клиентам. Поможем одобрить ипотеку с сниженной ставкой.