Местоположение
Дом
Квартира
Контакты
- Новосибирск
- Ленинский район
- Улица Костычева
- Метро Площадь Маркса
- Этаж 5/5
- Год постройки 1950-1960
- Все квартиры в этом доме
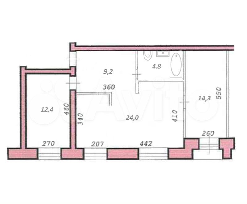
- Общая площадь 64.7 м2
- Жилая площадь 0 м2
- Агентство ЖилойФонд
- Источник Авито
- Дом
- Этаж: 5/5
- Год постройки: 1950-1960
Квартира
- Общая площадь: 64.7 м2
- Жилая площадь: 0 м2
Агентство ЖилойФонд
Источник Авито
Уютная 3-комнатная квартира в сталинском доме. Здесь есть воздух. Высокие потолки 3 метра. Здесь есть тишина. Толстые кирпичные стены. Здесь есть тепло. 5-ти камерные окна обеспечивают тепло и звукоизоляцию квартиры. Здесь есть свет. Солнце в первой половине дня, французское остекление, увеличенный проем окон. Квартира. -В квартире выполнен капитальный ремонт с заменой электрики, труб. -Стены обшиты гипсокартоном и оклеены обоями. -Окна 5-ти камерные. -Входная дверь и межкомнатные двери делались на заказ с увеличенной высотой полотна. -Установлена система защиты от протечек и умный дом с датчиками. -Теплый пол в сан узле. -Газ Отключен. -Планировка: жилые комнаты разнесены в разные части квартиры и не имеют общих стен, между ними общая зона кухни гостиной. Детская изолирована несущей стеной, обеспечивающей дополнительную шумоизоляцию внутри квартиры. * Вся мебель и техника на фото может остаться новым владельцам по согласованию. Дом. -Произведен капитальный ремонт крыши. -Произведен капитальный ремонт фасада. -В подъезде сделан ремонт: стены оштукатурены декоративной штукатуркой. -По периметру дома и в подъездах ведется видеонаблюдение. Дом находится под управлением Тсж «Костычева, 8» — домом управляют сами жители. На первом этаже расположен опорный пункт полиции. Во дворе: хоккейная коробка. Садик практически во дворе, в 100 метрах. Путь в школу — безопасный. Школа № 27 находится в 350 метрах, идти до неё через дворы, не пересекая проезжей части. Никаких нервов по утрам, ребёнок дойдёт сам. Французская гимназия через Монумент в 850 метрах. Музыкальная школа — в соседнем доме, Костычева, 4. В 350 метрах Монумент Славы — огромная зелёная зона в шаговой доступности. Идеально для семейных прогулок, утренних пробежек, велосипедов и самокатов. На салют можно ходить в домашних тапочках). Хорошая транспортная доступность, с пл. Станиславского можно уехать в любую точку города. До станции метро «Площадь Маркса» можно дойти пешком (примерно 1 км. Или 10-15 минут). Это свобода передвижения для всех членов семьи: родителям удобно добираться до работы, ребёнку-подростку — до кружков и секций. Поликлиника в 250 метрах от дома. Бассейн — 150 метров от дома. Юридический статус: 1 взрослый собственник. Без обременений. В собственности более 5 лет. Дополнительно оплачивается комиссия с покупателя. Пожалуйста, дождитесь ответа специалиста при звонке. Время дозвона до владельца объявления увеличено из-за использования подменных номеров на сайте Циан. Объявление не является публичной офертой.