Расположение
Новосибирск, Кировский район
Улица Аникина
Микрорайон Бугринская роща
Жилой комплекс Шесть Звезд
Местоположение
Дом
Квартира
Контакты
- Новосибирск
- Кировский район
- Улица Аникина
- Микрорайон Бугринская роща
- Жилой комплекс Шесть Звезд
- Этаж 24/26
- Год постройки 2017
- Все квартиры в этом доме
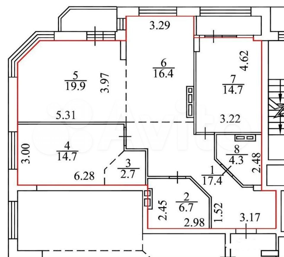
- Общая площадь 96.8 м2
- Жилая площадь 0 м2
- Дом
- Этаж: 24/26
- Год постройки: 2017
Квартира
- Общая площадь: 96.8 м2
- Жилая площадь: 0 м2
Очень светлая 4-комнатная квартира с ощущением простора и воздуха, панорамным видом на Бугринский мост. Обратите внимание на планировку! Выполнен свежий, дорогой, качественный ремонт. В квартире остается: - Большая кухня, полностью укомплектованная техникой Teka (Испания): варочная панель, духовой шкаф, большая посудомоечная машина. - Спортивный уголок и вся мебель в детской. - Новый кондиционер. - Водонагреватель. - вместо 2-го санузла в квартире оборудована хоз. Комната с местами для хранения. - в спальне большая гардеробная. Дом бизнес-класса. Территория огорожена. В доме красивый холл, консьерж, охрана, подземная парковка, 5 грузо-пассажирских лифтов, большая детская площадка. В пешей доступности: школа, детские сады, хорошая футбольная школа, ТЦ Мега, пляж. Рядом новый Спа-комплекс с фитнес клубом Хвоя, до пл. Маркса 10-15 минут на машине. Квартира без обременений. Чистая продажа. Возможен обмен на 1-комнатную с вашей доплатой.