Расположение
Новосибирск, Октябрьский район
Улица Добролюбова
Метро Речной вокзал
Жилой комплекс Михайловский
Местоположение
Дом
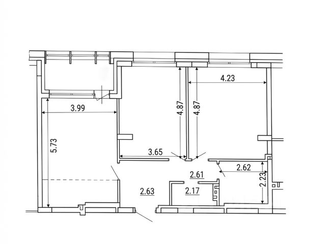
Квартира
Контакты
- Новосибирск
- Октябрьский район
- Улица Добролюбова
- Метро Речной вокзал
- Жилой комплекс Михайловский
- Этаж 3/14
- Год постройки 2021
- Все квартиры в этом доме
- Общая площадь 78.1 м2
- Жилая площадь 0 м2
- Агентство ID 121416922
- Источник Циан
- Дом
- Этаж: 3/14
- Год постройки: 2021
Квартира
- Общая площадь: 78.1 м2
- Жилая площадь: 0 м2
Агентство ID 121416922
Источник Циан
ЖК Михайловский / 3-комнатная квартира-студия 78.1 м² (без учета лоджии). Квартира в доме на берегу Оби с прямым выходом к Михайловской набережной. Собственная смотровая площадка. Закрытая охраняемая территория с двухуровневым паркингом под домом. Рядом с домом возводится современный многофункциональный комплекс, в нём разместятся офисы, гастрономические рестораны, бутики и сервисы для повседневной жизни. Здесь любуются салютами в праздники и наслаждаются активной культурной жизнью на открытых концертах и фестивалях. Общая площадь — 78.1 м² (без учета остекленной лоджии). Высота потолков — 3.3 м. Немецкие профильные системы остекления, центральное кондиционирование. Внутренние перегородки демонтированы, что оставляет свободу для индивидуального зонирования. Базовое пространство позволяет сформировать кухню-гостиную площадью 23 м². Теплая лоджия интегрирована в общее пространство. Этот дом создан для тех, кто ценит качество, безопасность и комфорт для всей семьи. Юридический статус 1 взрослый собственник. Без обременений. Чистая продажа. Дополнительно оплачивается комиссия с покупателя. Пожалуйста, дождитесь ответа специалиста при звонке. Время дозвона до владельца объявления увеличено из-за использования подменных номеров на сайте Циан.