193 617 ₽/м²
30 мар
30 мар
1 (+1)
Расположение
Новосибирск, Заельцовский район
Улица Красный проспект
Метро Заельцовская
Жилой комплекс Расцветай на Красном
Местоположение
Дом
Квартира
Контакты
- Новосибирск
- Заельцовский район
- Улица Красный проспект
- Метро Заельцовская
- Жилой комплекс Расцветай на Красном
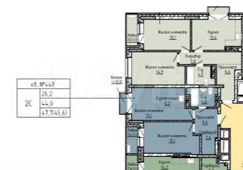
- Этаж 18/33
- Все квартиры в этом доме
- Общая площадь 47.7 м2
- Жилая площадь 0 м2
- Собственник
- Источник Авито
Собственник
Источник Авито
Квартира 2-ка студия. Удобная планировка. Отличное месторасположение. Надежный застройщик. Парковки и кладовые в доме. Инфраструктура вся рядом. Метро 5 минут пешком. Сдача 2 квартал 2026 года. Отличная планировка для евродвушки. Цена ниже чем у застройщика на 250 тыс.