Расположение
Новосибирск, Кировский район
Улица Немировича-Данченко
Метро Студенческая
Жилой комплекс Дом на Немировича
Местоположение
Дом
Квартира
Контакты
- Новосибирск
- Кировский район
- Улица Немировича-Данченко
- Метро Студенческая
- Жилой комплекс Дом на Немировича
- Этаж 7/25
- Год постройки 2018
- Все квартиры в этом доме
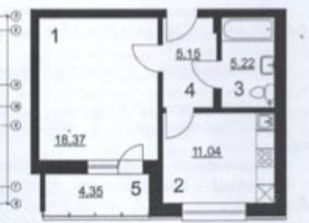
- Общая площадь 39.8 м2
- Жилая площадь 0 м2
- Агентство Татьяна Ларькина
- Источник Циан
- Дом
- Этаж: 7/25
- Год постройки: 2018
Квартира
- Общая площадь: 39.8 м2
- Жилая площадь: 0 м2
Агентство Татьяна Ларькина
Источник Циан
Чистая продажа Продается уютная квартира в современном доме, расположенном в районе метро Студенческая, до которого можно дойти всего за 10 минут пешком. Квартира находится на 7 этаже 25-этажного кирпичного дома 2017 года постройки. Общая площадь квартиры составляет 39,8 кв. м, из которых жилая площадь — 18,37 кв. м, а кухня — 11,04 кв. м. Высота потолков — 2,7 метра, что создает ощущение простора. Квартира с евроремонтом, поэтому вам не придется тратить время и деньги на отделку. В жилом помещении уже есть необходимая мебель и техника, которые позволят вам сразу переехать и наслаждаться комфортом. Планировка продумана до мелочей, а совмещенный санузел выполнен в современном стиле. Из окон открывается вид на улицу, а на лоджии можно наслаждаться свежим воздухом. Дом находится в отличном состоянии, оснащен подземной парковкой, что очень удобно для автовладельцев. В здании функционируют как пассажирский, так и грузовой лифты, поэтому можно легко перемещаться между этажами. Рядом с домом есть все необходимое для комфортной жизни: школы, детские сады, клиники и магазины. Это идеальное место для тех, кто ценит удобство и развитую инфраструктуру. До ближайшего метро можно дойти за 10 минут, что делает поездки по городу быстрыми и удобными. Квартира продается без обременений, возможна покупка в ипотеку. Все юридические документы в порядке, а сделка будет сопровождаться профессиональным агентом, что обеспечит безопасность и прозрачность. Не упустите возможность приобрести эту замечательную квартиру! Записывайтесь на просмотр и убедитесь сами в её достоинствах. Ждем вас!