Расположение
Новосибирск, Кировский район
Улица Николая Сотникова
Микрорайон Южно-Чемской
Жилой комплекс Гранатовый
Местоположение
Дом
Квартира
Контакты
- Новосибирск
- Кировский район
- Улица Николая Сотникова
- Микрорайон Южно-Чемской
- Жилой комплекс Гранатовый
- Этаж 8/15
- Год постройки 2024
- Все квартиры в этом доме
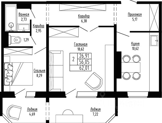
- Общая площадь 62 м2
- Жилая площадь 0 м2
- Дом
- Этаж: 8/15
- Год постройки: 2024
Квартира
- Общая площадь: 62 м2
- Жилая площадь: 0 м2
Семейная ипотека! Жилой комплекс состоит из 3 панельных домов высотой от 12 до 15 этажей. Проект реализуется с применением собственных строительных материалов, что позволяет строго контролировать качество на всех этапах. Фасады зданий оштукатурены, в каждом подъезде установлен пассажирский лифт. В квартирах установлены стандартные окна с деревянными рамами и тройными стеклопакетами, входная дверь - металлическая, утепленная. Высота потолков составляет 2,7 метра. Стены оклеены обоями, потолки окрашены, на полу - линолеум. Кухни оснащены электроплитой и мойкой, в санузле - вся необходимая сантехника. На придомовой территории комплекса предусмотрены детские и спортивные площадки - где дети смогут активно проводить время, а взрослые заниматься физической активностью на свежем воздухе. Для владельцев автомобилей оборудована открытая наземная парковка рядом с корпусами. Проект расположен в Кировском районе, на территории Южно-Чемского жилого массива. До центра Новосибирска - около 35 минут транспортом, до станции метро Площадь Маркса - 20 минут. В пределах 5-10 минут транспортом находятся школы, детские сады, медицинские учреждения и дендропарк имени Академика Синягина. Всего за 10-15 минут пешком можно добраться до супермаркетов, аптек, кафе, ресторанов и торгового центра Авокадо. До пляжа на реке Обь и торгового центра Мега - 20 минут транспортом. ID объекта в нашей базе: 114