Расположение
Новосибирск, Кировский район
Улица Тульская
Метро Площадь Маркса
Жилой комплекс Тульский
Местоположение
Дом
Квартира
Контакты
- Новосибирск
- Кировский район
- Улица Тульская
- Метро Площадь Маркса
- Жилой комплекс Тульский
- Этаж 9/17
- Год постройки 2021
- Все квартиры в этом доме
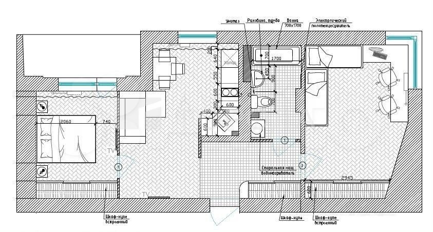
- Общая площадь 68 м2
- Жилая площадь 0 м2
- Агентство Города Новосибирск Продажа
- Источник Авито
- Дом
- Этаж: 9/17
- Год постройки: 2021
Квартира
- Общая площадь: 68 м2
- Жилая площадь: 0 м2
Агентство Города Новосибирск Продажа
Источник Авито
Код объекта: 2082069. Продаётся прекрасная квартира с европланировкой в ЖК «Тульский» в Новосибирске (Кировский район, Тульская улица, 80). Площадь — 68 м² (жилая — 40 м², кухня — 18 м²), 9 этаж из 17. Год постройки дома — 2021. В квартире хороший ремонт, продуманная планировка: отдельная кухня, гостиная, спальня, детская и отсек для прачечной. Есть лоджия и балкон. Рядом — Бугринская роща, Трц «Мега», школы, детские сады, спортивная площадка. В пешей доступности станции метро «Площадь Маркса» и «Студенческая». Возможно оформление ипотеки. Мы гарантируем безопасную сделку и юридическую поддержку нашим Клиентам. Поможем одобрить ипотеку с сниженной ставкой. Дополнительно оплачивается комиссия с покупателя!