Местоположение
Дом
Квартира
Контакты
- Новосибирск
- Дзержинский район
- Улица Есенина
- Метро Золотая Нива
- Этаж 1/5
- Год постройки 1960-1970
- Все квартиры в этом доме
- Общая площадь 57 м2
- Жилая площадь 0 м2
- Дом
- Этаж: 1/5
- Год постройки: 1960-1970
Квартира
- Общая площадь: 57 м2
- Жилая площадь: 0 м2
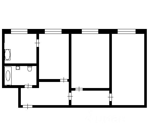
Код объекта: 2081417. В продаже - трёхкомнатная квартира по адресу улица Есенина, 39 — идеальное решение для тех, кто ищет комфортное жильё в спокойном районе. Квартира общей площадью 57 кв. м расположена на первом этаже пятиэтажного панельного дома. Жилая площадь составляет 39,7 кв. м. Три изолированные комнаты. Кладовка - 2.2 кв.м. Высота потолков 2,5 м создаёт ощущение простора. В квартире выполнен косметический ремонт, что позволяет новым владельцам сразу заселиться или при желании обновить интерьер по своему вкусу. Наземная парковка обеспечивает удобное место для автомобиля. Окна выходят на улицу, а в доме центральное отопление. До остановки общественного транспорта 1 минута ходьбы! Хорошие соседи. Отличная инфраструктура - в шаговой доступности школа - через дорогу, детский сад - 9 минут пешком. Магазины, рынок, банки, кинотеатр, торговые центры, кафе и т.д. Это хороший выбор для проживания семьи или под сдачу в аренду. В квартире никто не проживает. Один собственник. Обременения нет. Документы готовы к сделке. Не упустите шанс стать владельцем этой уютной квартиры. Звоните нам прямо сейчас, чтобы узнать больше и записаться на просмотр. Мы гарантируем безопасную сделку и юридическую поддержку нашим клиентам. Поможем одобрить ипотеку с сниженной ставкой.