Расположение
Новосибирск, Заельцовский район
Улица Залесского
Микрорайон Гор Больница локация
Жилой комплекс Верхний город
Местоположение
Дом
Квартира
Контакты
- Новосибирск
- Заельцовский район
- Улица Залесского
- Микрорайон Гор Больница локация
- Жилой комплекс Верхний город
- Этаж 6/26
- Год постройки 2014
- Все квартиры в этом доме
- Общая площадь 71.1 м2
- Жилая площадь 0 м2
- Дом
- Этаж: 6/26
- Год постройки: 2014
Квартира
- Общая площадь: 71.1 м2
- Жилая площадь: 0 м2
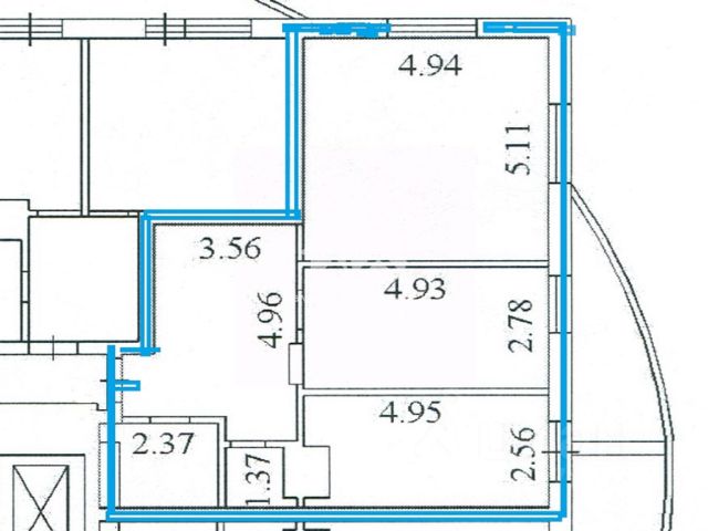
Код объекта: 1233741. Уникальное предложение в Новосибирске: просторная двухкомнатная квартира на улице Залесского, 2/4 — идеальное решение для тех, кто ценит комфорт и безопасность. Квартира расположена на шестом этаже современного 26-этажного дома, построенного в 2016 году. Кирпичные стены и железобетонные перекрытия обеспечивают отличную звуко- и теплоизоляцию. Высота потолков 2,7 метра создаёт ощущение простора и свободы. Общая площадь квартиры составляет 71,1 кв. м( без учета большой лоджии), из которых 38,9 кв. м — жилая площадь. Две изолированные комнаты (25,2 кв. м и 13,7 кв. м) идеально подойдут для семьи. Кухня площадью 12,7 кв. м станет местом для приготовления вкусных блюд и семейных ужинов. Косметический ремонт позволяет новым владельцам воплотить свои дизайнерские идеи. Окна выходят на улицу и во двор, обеспечивая достаточное естественное освещение. Есть лоджия, где можно устроить зону отдыха. Наземная парковка и огороженная территория обеспечивают безопасность и удобство для жителей. Дом расположен в районе с развитой инфраструктурой: рядом школы, детские сады, магазины, аптеки и спортивные клубы. Не упустите возможность стать владельцем этой замечательной квартиры! Звоните нам прямо сейчас, чтобы узнать больше и записаться на просмотр. Мы гарантируем безопасную сделку и юридическую поддержку нашим Клиентам. Поможем одобрить ипотеку с сниженной ставкой.