Местоположение
Дом
Квартира
Контакты
- Новосибирск
- Калининский район
- Улица 25 лет Октября
- Микрорайон Менделеевский
- Этаж 9/10
- Год постройки 1990-2000
- Все квартиры в этом доме
- Общая площадь 59 м2
- Жилая площадь 0 м2
- Агентство Города Новосибирск Продажа
- Источник Авито
- Дом
- Этаж: 9/10
- Год постройки: 1990-2000
Квартира
- Общая площадь: 59 м2
- Жилая площадь: 0 м2
Агентство Города Новосибирск Продажа
Источник Авито
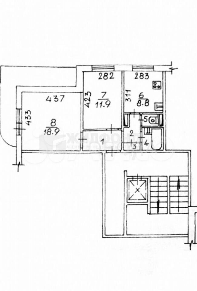
Код объекта: 2033597. Уникальное предложение в Новосибирске: просторная двухкомнатная квартира на улице 25 лет Октября, 14 — идеальное жильё для вашей семьи! Квартира расположена на 9 этаже десятиэтажного панельного дома 1993 года постройки. Общая площадь — 59 кв. М, из которых 38 кв. М — жилая площадь, 9 кв. М — кухня. Комнаты изолированы, что обеспечивает комфорт и уединение. Косметический ремонт позволяет въехать и начать жить без дополнительных вложений. Окна выходят на улицу, а угловое расположение квартиры обеспечивает хорошее естественное освещение. Квартира имеет раздельный санузел, что является удобным решением для семейного проживания. Этот район Новосибирска отличается развитой инфраструктурой и хорошей транспортной доступностью. Рядом есть всё необходимое для комфортной жизни: магазины, школы, детские сады, поликлиники. Не упустите шанс стать владельцем этой замечательной квартиры! Позвоните нам прямо сейчас, чтобы узнать больше и записаться на просмотр. Мы гарантируем безопасную сделку и юридическую поддержку нашим Клиентам. Поможем одобрить ипотеку с сниженной ставкой.