Расположение
Новосибирск, Заельцовский район
Улица Дуси Ковальчук
Метро Заельцовская
Жилой комплекс Возрождение (Покровский)
Местоположение
Дом
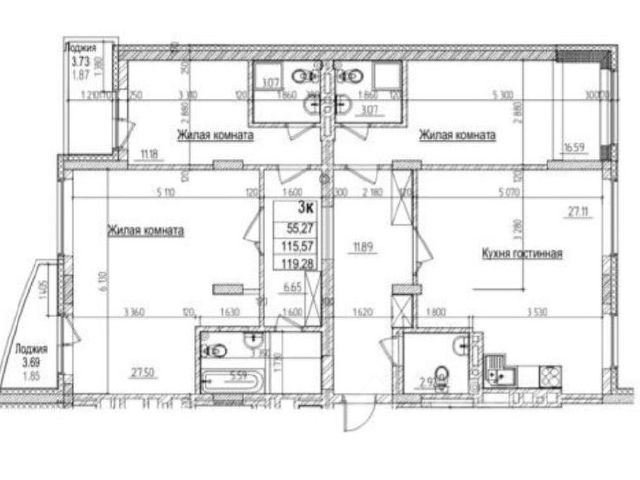
Квартира
Контакты
- Новосибирск
- Заельцовский район
- Улица Дуси Ковальчук
- Метро Заельцовская
- Жилой комплекс Возрождение (Покровский)
- Этаж 7/19
- Год постройки 2024
- Все квартиры в этом доме
- Общая площадь 116 м2
- Жилая площадь 0 м2
- Агентство Поиск Метров
- Источник Циан
- Дом
- Этаж: 7/19
- Год постройки: 2024
Квартира
- Общая площадь: 116 м2
- Жилая площадь: 0 м2
Агентство Поиск Метров
Источник Циан
В продаже эксклюзивная 4- х комнатная квартира с видом на проспект и во двор , площадью 120 м2 !!!! По очень привлекательной цене !!!! 100 тыс. руб за метр!!!! (таких предложений не найти). В сданном доме ЖК ВОЗРОЖДЕНИЕ !! ПО ЛИНИИ МЕТРО ( 7 минут ходьбы от м. Заельцовская- это второй центр города )! Просторная квартира предлагает рациональную планировку с изолированными комнатами, что создает комфортные условия для жизни семьи. Объект передается с улучшенной черновой отделкой, позволяя новым владельцам самостоятельно выбрать стиль и материалы для чистового ремонта в соответствии с личными предпочтениями и бюджетом. Ключевым преимуществом является инфраструктура комплекса: бесшумные скоростные лифты увеличенной грузоподъемности, функциональные зоны с современными детскими и спортивными площадками, оснащенными травмобезопасным покрытием, а также благоустроенная придомовая территория с ландшафтным дизайном. Безопасность обеспечивается круглосуточной охраной и системой видеонаблюдения. Вопрос хранения автомобиля решен за счет наличия большого подземного паркинга. Общественные пространства, включая холлы и подъезды, выполнены в едином стиле с применением долговечных и эстетичных материалов, что поддерживает высокий стандарт содержания объекта. Транспортная доступность и развитая социальная инфраструктура в районе добавляют практической ценности данному предложению. Расположение: Дом находится в одном из лучших мест Заельцовского района. В шаговой доступности расположены: • Городской зоопарк и ботанический сад • Удобная транспортная развязка: все виды транспорта, включая станцию метро Заельцовская в 7 минутах ходьбы • Рядом детские сады, школы, спортивные клубы, магазины, ТРЦ на площади Калинина, банки, аптеки, кафе и многое другое Не упустите возможность стать владельцем уютной квартиры в отличном районе! Документы готовы к сделке! Один собственник , маткап не использовался . Дополнительно оплачивается комиссия с покупателя.