Расположение
Новосибирск, Октябрьский район
Улица Добролюбова
Метро Речной вокзал
Жилой комплекс Михайловский
Местоположение
Дом
Квартира
Контакты
- Новосибирск
- Октябрьский район
- Улица Добролюбова
- Метро Речной вокзал
- Жилой комплекс Михайловский
- Этаж 3/11
- Год постройки 2021
- Все квартиры в этом доме
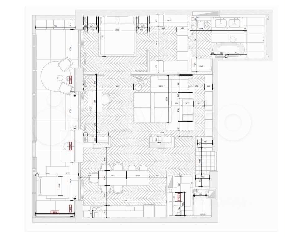
- Общая площадь 100 м2
- Жилая площадь 0 м2
- Агентство Этажи Новосибирск и Бердск
- Источник Авито
- Дом
- Этаж: 3/11
- Год постройки: 2021
Квартира
- Общая площадь: 100 м2
- Жилая площадь: 0 м2
Агентство Этажи Новосибирск и Бердск
Источник Авито
Эксклюзивное предложение в ЖК «Михайловский». Ваши 100 м² тишины и света над Обью. Продаётся не просто квартира, а готовое пространство для жизни с бесценным видом. Панорамные окна открывают живописные пейзажи реки в любое время года — от летних закатов до зимних снегов. Что делает это предложение уникальным: 1. Вид, который не купишь: Окна смотрят только на воду и набережную — ни машин, ни пыли, ни чужих окон напротив. 2. Абсолютная готовность: В стоимость входит вся мебель и техника премиум-класса (от дивана до кофемашины). Заехать можно сегодня. 3. Инженерия для комфорта: Полный контроль климата (кондиционер, тёплый пол, регулируемые радиаторы Zehnder) и безопасность (датчики протечек). 4. Авторские детали: Дизайнерская отделка, сантехника, двери Minimal Doors и встроенная техника Bosch. Бонус: К квартире можно приобрести парковочное место у своего подъезда. Один собственник. Дом с закрытым двором и стильными парадными. Код пользователя: 179479. Номер в базе: 10878405.