Расположение
Новосибирск, Кировский район
Улица Петухова
Микрорайон Южно-Чемской
Жилой комплекс Матрешкин двор
Местоположение
Дом
Квартира
Контакты
- Новосибирск
- Кировский район
- Улица Петухова
- Микрорайон Южно-Чемской
- Жилой комплекс Матрешкин двор
- Этаж 1/23
- Год постройки 2020
- Все квартиры в этом доме
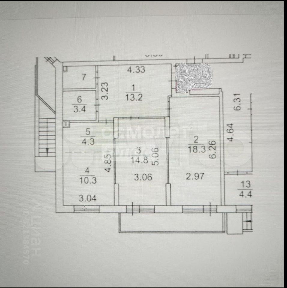
- Общая площадь 66.9 м2
- Жилая площадь 0 м2
- Агентство САМОЛЕТ ПЛЮС
- Источник Авито
- Дом
- Этаж: 1/23
- Год постройки: 2020
Квартира
- Общая площадь: 66.9 м2
- Жилая площадь: 0 м2
Агентство САМОЛЕТ ПЛЮС
Источник Авито
Арт. 128571738 Приглашаем вас познакомиться с просторной 3-комнатной квартирой-студией площадью 66,9 кв. М, расположенной на 1 этаже современного 23-этажного дома 2020г постройки (ЖК Матрешкин Двор). Это не просто квартира, это продуманное пространство, где каждая деталь способствует вашему комфорту и благополучию. Квартира юридически чистая, без обременений. Удачная планировка — просторная кухня-гостиная, комнаты правильной формы, балкон застекленный почти 6 кв. М. Удалена от лифтовой шахты, приличный ремонт от застройщика. Камеры по периметру и внутри дома, дружные соседи с активным председателем во главе. Планировка студии позволяет воплотить самые смелые дизайнерские решения, создавая функциональное и стильное жилье, полностью отвечающее вашим предпочтениям. Первый этаж обеспечивает удобство и быстрый доступ к дому. Расположение дома — это одно из ключевых преимуществ. Вся необходимая инфраструктура находится буквально в шаговой доступности: Образование: Рядом расположены школы (217 школа в 5 минутах ходьбы) и детские сады, что гарантирует удобство и безопасность для ваших детей; Поликлиники: действующая и новая (с современным оборудованием); Парковка: Во дворе предусмотрена большая наземная парковка, где всегда найдется место для вашего автомобиля; Досуг: Современная детская площадка станет любимым местом для игр и прогулок всей семьи. Транспорт: Остановки общественного транспорта обеспечивают легкое сообщение с любым районом города (57 автобус, 29, 29А); Сервисы: Магазины, салоны красоты и другие важные объекты инфраструктуры находятся совсем близко, делая вашу жизнь максимально комфортной. Эта квартира — идеальный выбор для состоятельных семей, которые ценят удобство, развитую инфраструктуру и стремятся обеспечить своим детям самое лучшее. Мы уверены, что эта квартира станет для вас и вашей семьи идеальным домом, где вы сможете наслаждаться каждым моментом. Ипотека на данную квартиру 12,25%! Документы готовы к продаже. Полное юридическое сопровождение сделки. Запишитесь на индивидуальный показ, чтобы лично оценить все преимущества этого уникального предложения!