Расположение
Новосибирск, Кировский район
Улица Немировича-Данченко
Метро Студенческая
Жилой комплекс Панорама
Местоположение
Дом
Квартира
Контакты
- Новосибирск
- Кировский район
- Улица Немировича-Данченко
- Метро Студенческая
- Жилой комплекс Панорама
- Этаж 21/25
- Год постройки 2018
- Все квартиры в этом доме
- Общая площадь 60.8 м2
- Жилая площадь 0 м2
- Агентство Прометей
- Источник Авито
- Дом
- Этаж: 21/25
- Год постройки: 2018
Квартира
- Общая площадь: 60.8 м2
- Жилая площадь: 0 м2
Агентство Прометей
Источник Авито
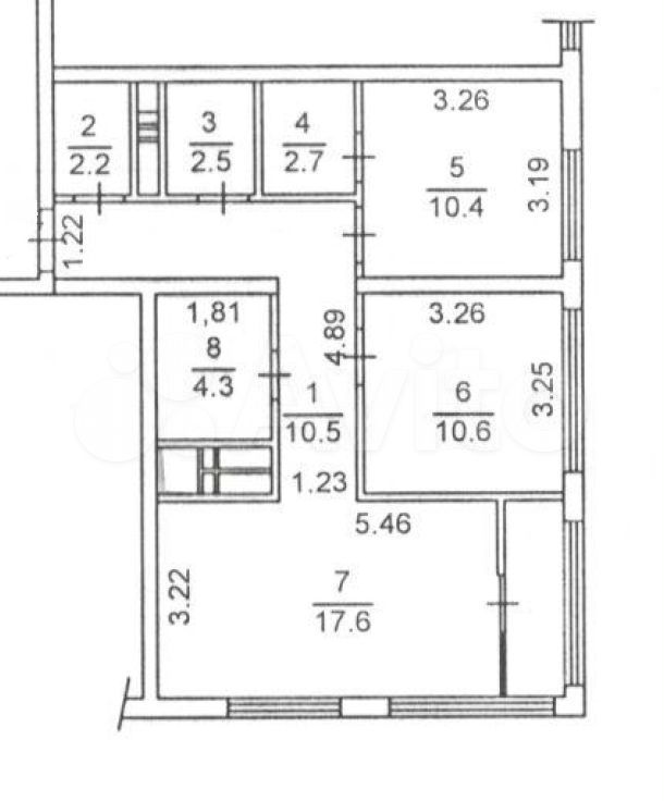
В продаже шикарная двухкомнатная квартира 64,1 кв. М в доме, расположенном в современном комфортном жилом комплексе «Панорама». Прекрасная планировка очень удобна в эксплуатации: - Две изолированные комнаты: спальня 10,4 м2 (со входом в отдельную гардеробную 2,7 м2) и детская 10,6 м2, - Большущая кухня-гостиная 21 м2, - 2 санузла (2,5 и 4,3 м2) и. - Гардеробная в прихожей 2,2 м2. Квартира очень тёплая даже в самые лютые морозы. Замечательный и удивительный вид на город, реку и красивые закаты. Стильный современный ремонт в хорошем состоянии. В спальнях на полу ламинат, в остальных помещениях — керамогранит. Натяжные потолки во всей квартире с точечными светильниками. В гостиной установлен кондиционер, который поможет в жаркие летние дни отдохнуть в прохладе. В ванной и туалете тёплый пол, кафель до потолка, унитаз с инсталляцией, водонагреватель, удобная глубокая ванна, оригинальные раковины с тумбами и зеркалами. В качестве приятного бонуса для будущих владельцев этой прекрасной квартиры остаётся: Кухонный гарнитур со встроенной варочной поверхностью, духовым шкафом, посудомоечной машиной и вытяжкой, диван, кондиционер, двуспальная кровать с тумбами, туалетный столик, система хранения в гардеробной и шкаф. В подъезде четыре скоростных и бесшумных лифта фирмы Коnе. В доме предусмотрена горизонтальная разводка отопления, оснащенная счетчиками тепла, что позволяет сократить затраты. Все показания передаются в автоматическом режиме. На первом этаже есть общедомовая колясочная. Отличная придомовая территория! Безопасные детские площадки с прорезиненным покрытием, Площадки для силовых тренировок и стритбола, Многоуровневая подсветка домов и дворовых пространств. Гостевые парковочные места. По периметру дома установлена система видеонаблюдения. Круглосуточная охрана с закрытым периметром. Рядом остановка общественного транспорта, станция метро «Студенческая» и «Спортивная». В пешей доступности различные магазины, аптеки, салоны красоты, несколько фитнес-клубов, ТЦ «Горский», Нгту и сибупк, Университетская гимназия, лицеи и школы. Муниципальные сады в близлежащих кварталах на Блюхера, Новогодней и проспекте Карла Маркса. Детская поликлиника и Областная клиническая больница. Также квартал граничит с горнолыжным склоном, где вы можете кататься на лыжах или сноуборде буквально перешагнув за границу квартала. В шаговой доступности все крупные мероприятия, которые проводит новая Сибирь-Арена, рядом с которой построен парк для занятий спортом и отдыха. Также рядом спортивный, батутный центр колледжа Олимпийского резерва и продовольственный рынок площадью 2500 м2. Всё для Вас! Звоните, чтобы узнать подробности и записаться на просмотр. Мы гарантируем безопасную сделку и юридическую поддержку нашим Клиентам. Поможем одобрить ипотеку со сниженной ставкой. А если вы из другого региона, проведем онлайн-показ и безопасную сделку в банке! При покупке данного объекта предусмотрена комиссия агентства.