Расположение
Новосибирск, Ленинский район
Улица Титова
Микрорайон Чистая Слобода
Жилой комплекс Любимый
Местоположение
Дом
Квартира
Контакты
- Новосибирск
- Ленинский район
- Улица Титова
- Микрорайон Чистая Слобода
- Жилой комплекс Любимый
- Этаж 13/14
- Год постройки 2024
- Все квартиры в этом доме
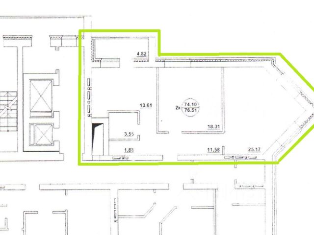
- Общая площадь 74.3 м2
- Жилая площадь 0 м2
- Агентство Планета-А
- Источник Циан
- Дом
- Этаж: 13/14
- Год постройки: 2024
Квартира
- Общая площадь: 74.3 м2
- Жилая площадь: 0 м2
Агентство Планета-А
Источник Циан
В продаже двухкомнатная квартира улучшенной планировки. Дом сдан в 2025 году. Дом классической кирпичной кладки стен, что обеспечивает хорошую тепло- и шумоизоляцию. Квартира под отделку. Лоджия 4,8 м. Два лифта: грузовой и пассажирский. Дом расположен в районе с развитой инфраструктурой, где есть школы, детские сады, магазины и торговые центры, спортивный комплекс Заря. До площади Маркса на ОТ примерно 20-25 минут. Один взрослый собственник. Формы расчёта любые. Без обременений, быстро выйдем на сделку. По всем вопросам ЗВОНИТЕ НА УКАЗАННЫЙ НОМЕР.