Местоположение
Дом
Квартира
Контакты
- Новосибирск
- НСО район
- Улица Никольский проспект
- Микрорайон Кольцово
- Этаж 6/9
- Год постройки 2009
- Все квартиры в этом доме
- Общая площадь 66.7 м2
- Жилая площадь 0 м2
- Агентство Кольцовская служба недвижимости
- Источник Циан
- Дом
- Этаж: 6/9
- Год постройки: 2009
Квартира
- Общая площадь: 66.7 м2
- Жилая площадь: 0 м2
Агентство Кольцовская служба недвижимости
Источник Циан
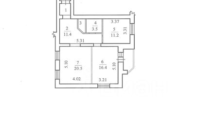
Предлагаем вашему вниманию просторную 2-х комнатную квартиру в Кольцово. Шикарная планировка(таких очень мало). Квартира очень солнечная, пять окон на 3 комнаты. При этом летом прохладно, а зимой тепло. Квартира в хорошем состоянии. На кухне (11.2 м2) хороший кухонный гарнитур, встроенные варочная поверхность и духовка Electrolux. Система очистки воды с обратным осмосом и минерализацией. На полу пробка. И прекрасный вид из окна в подарок. В спальне (16.5 м2) два окна и установлена приточка воздуха Tion с подогревом воздуха, что позволяет не открывать окна для проветривания даже зимой. А значит тишина и свежий воздух круглый год. На полу пробка. Выход на большую застеклённую лоджию (3.6 м2). В просторной гостиной (20.5 м2) есть где разгуляться. На полу ламинат. 2 окна во двор. В туалете установлен водонагреватель 50л, с горячей водой для ванной и кухни. Полное обслуживание проведено в 2023 г. В прихожей (11.5 м2) большой встроенный шкаф с зеркалом. На полу ламинат, в коридоре у входа в квартиру плитка. В квартире остается кухонный гарнитур со встроенной бытовой техникой,шкаф в прихожей,шкаф и зеркало в ванной,водонагреватель, стенка в гостиной, остальная мебель по договоренности. Площадь квартиры 66.7 кв.м + 3.6 кв.м лоджия. Документы в порядке-1 взрослый собственник, без обременений и т.п. Около дома много парковочных мест,вы всегда сможете найти место для своего автомобиля. Ухоженная придомовая территория с шикарными газонами, детскими и спортивными площадками, по периметру дома видеонаблюдение. В шаговой доступности вся инфраструктура: детские сады, школы, бассейн,стадион, магазины, поликлиника,аптеки, МФЦ,остановка общественного транспорта, парк отдыха с озером, горнолыжная трасса и много другое..... За приобретение данного объекта взимается комиссия с покупателя. Приглашаем на просмотр