Расположение
Новосибирск, Октябрьский район
Улица Добролюбова
Метро Речной вокзал
Жилой комплекс Михайловский
Местоположение
Дом
Квартира
Контакты
- Новосибирск
- Октябрьский район
- Улица Добролюбова
- Метро Речной вокзал
- Жилой комплекс Михайловский
- Этаж 3/11
- Год постройки 2021
- Все квартиры в этом доме
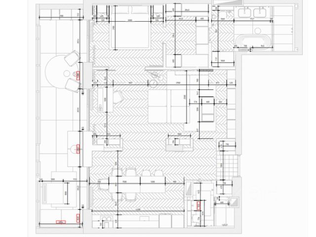
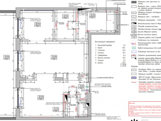
- Общая площадь 100 м2
- Жилая площадь 0 м2
- Собственник
- Источник Циан
- Дом
- Этаж: 3/11
- Год постройки: 2021
Квартира
- Общая площадь: 100 м2
- Жилая площадь: 0 м2
Собственник
Источник Циан
ЗА КВАРТИРУ ВНЕСЕН ЗАДАТОК. Специальное предложение в ЖК Михайловский 75 м² + 25 м² лоджия (всего 100 м²) с панорамой на Обь. Полностью готова для Вашего комфортного проживания. Все соседи вокруг доделали ремонты. В данную цену входит вся мебель и техника, подземное парковочное место у подъезда (18 м²) обсуждается отдельно. Один собственник, без обременений. Уникальный вид: Редкая панорама реки — без машин, пыли, высоток. Закаты летом, снежные пейзажи зимой. Собственный выход на набережную. Инженерия премиум-класса: •Алюминиевые окна Schuco. •Канальный кондиционер. •Вертикальные радиаторы Zehnder с терморегуляцией, электрические Сунержа в СУ. •Датчики протечек в мокрых зонах. Отделка и техника: •Пол: инженерная доска + керамогранит с тёплым полом. •Стены: ровные под лампу Лосева + краска Flgger. •Потолки: 3,3 м с гипсовой отделкой. Сантехника: Omnires в СУ, Omoikiri на кухне, ванна Salini. Двери: Minimal Doors. Встраиваемая техника: Bosch Series 6. Мебель: массив тика от Teak House + шпон и Egger. В доме: Продуманные общественные зоны, приватныый двор, стильные парадные и качественные лифты с премиальной отделкой. Звоните.