Местоположение
Дом
Квартира
Контакты
- Новосибирск
- Ленинский район
- Улица Серафимовича
- Метро Площадь Маркса
- Этаж 4/5
- Материал Кирпич
- Год постройки 1950-1960
- Все квартиры в этом доме
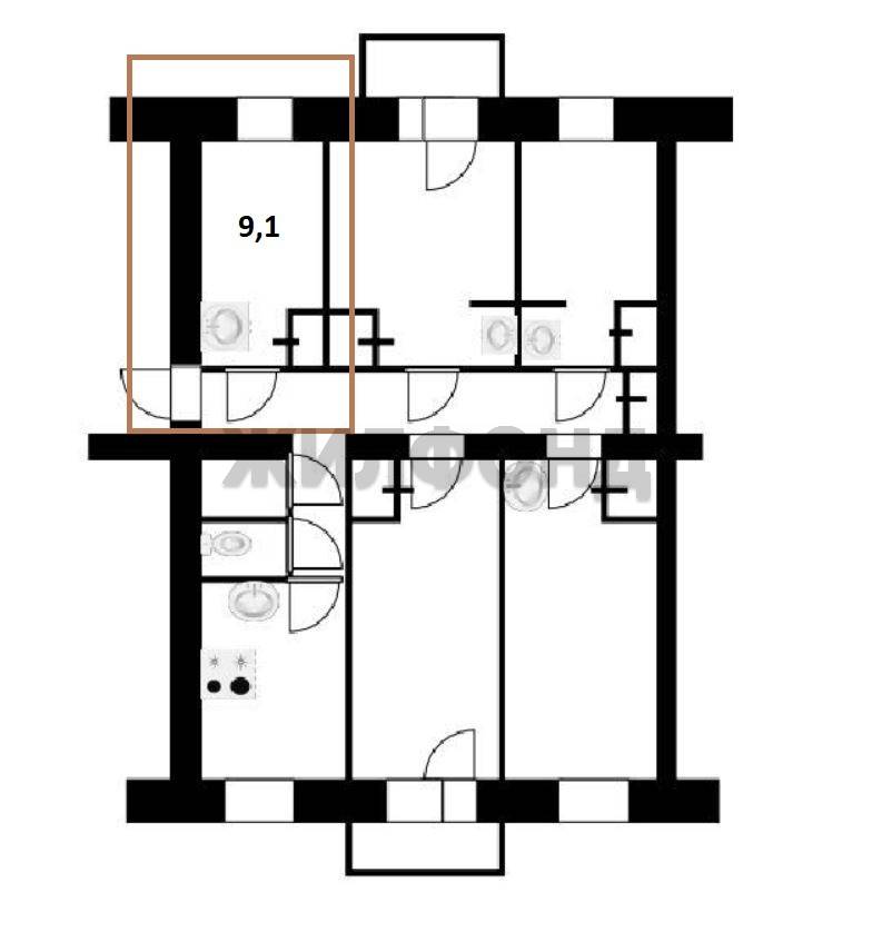
- Общая площадь 9 м2
- Жилая площадь 9 м2
- Площадь кухни 1 м2
- Санузел Раздельный
- Агентство ЖИЛФОНД
- Ольга Сергеевна
- +7 (962) 834-61-07
- Дом
- Этаж: 4/5
- Материал: Кирпич
- Год постройки: 1950-1960
Квартира
- Общая площадь: 9 м2
- Жилая площадь: 9 м2
- Площадь кухни: 1 м2
- Санузел: Раздельный
Агентство ЖИЛФОНД
Ольга Сергеевна +7 (962) 834-61-07
Комната по ул. Серафимовича. Общей площадью: 9.00 кв.м. В продаже комната, с жилой площадью 9,1 кв.м. (долевая собственность) в коммунальной 5-ти комнатной квартире. Один взрослый собственник. Никто не прописан. Вода заведена в комнату, что безусловно, является важным моментом для комфортного проживания. Наше предложение подходит как для личного проживания, так и для сдачи в аренду. Показ возможен в любое время, по предварительной договорённости, ключи в агентстве. Отличная транспортная развязка (720 метров до метро Площадь Маркса) и развитая инфраструктура: рядом остановка Телецентр, продуктовые магазины, школы, детские сады, мед.центры, бассейн, дома творчества, 3 сквера. Покупка возможна только за наличный расчёт. Рядом с объектом находятся:2 школы,3 детских сада,10 продуктовых магазинов,1 спортивное учреждение,1 гимназия,1 лицей,1 колледж. Возможен обмен на вашу недвижимость. Возможна продажа в рассрочку. При звонке, пожалуйста, сообщите номер варианта - JV009054113495