Расположение
Новосибирск, Заельцовский район
Улица Плановая
Метро Заельцовская
Жилой комплекс Русское солнце
Местоположение
Дом
Квартира
Контакты
- Новосибирск
- Заельцовский район
- Улица Плановая
- Метро Заельцовская
- Жилой комплекс Русское солнце
- Этаж 7/16
- Год постройки 2025
- Все квартиры в этом доме
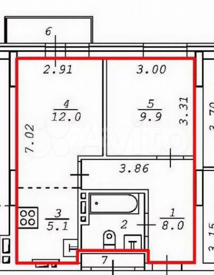
- Общая площадь 38.8 м2
- Жилая площадь 0 м2
- Агентство Этажи Новосибирск и Бердск
- Источник Авито
- Дом
- Этаж: 7/16
- Год постройки: 2025
Квартира
- Общая площадь: 38.8 м2
- Жилая площадь: 0 м2
Агентство Этажи Новосибирск и Бердск
Источник Авито
Хотите купить квартиру рядом в одной из лучших локаций Новосибирска? Продаётся квартира: Заельцовский район, ЖК « Русское солнце», дом «Застава», комфортный 7 этаж 16-этажного дома. ЖК бизнес -класса. Дом сдан, ключи на руках. Квартира 38,8 кв. М., кухня-гостиная 17 кв. М., потолки 2,87. Технология строительства — монолитный каркас с кирпичным заполнением. Внешние стены выполнены по технологии многослойной кирпичной кладки. Квартира с отделкой White box: Стяжка пола подготовлена к укладке чистовых отделочных материалов, на кирпичные стены нанесена гипсовая штукатурка, швы между пазогребневыми плитами заштукатурены. Стены сан. Узлов изнутри оштукатурены марочным цементно-песчаным раствором. Во всех квартирах установлены приборы учета воды, электроэнергии и качественные металлические утепленные входные двери с двумя замками и внутренним Мдф-щитком. Окна и двери балконов выполнены из пятикамерного Пвх-профиля. Удачное расположение квартиры, вид из окна в сторону зоопарка. Жилой комплекс «Русское Солнце» будет включать шесть домов, каждый из которых уникален, каждый — произведение архитектурного и строительного искусства, у каждого — своё имя и свой характеризуется: 30-этажная «Колокольня», «Ларец», «Теремной», «Зимний», «Красные ворота», «Застава». Жилой комплекс «Русское Солнце» расположен в центральной части Новосибирска. Локация сочетает в себе выгодное расположение и экологическое окружение: буквально за поворотом находится Тимирязевский сквер, через дорогу — Дендрологический парк и Новосибирский зоопарк, прекрасные места для отдыха и прогулок. Социальная инфраструктура в шаговой доступности: Мадоу д/с № 59, 5 минут пешей ходьбы≈265 м. Мадоу г. Новосибирска детский сад № 59 Золотой петушок, 5 минут пешей ходьбы ≈276 м. Средняя общеобразовательная школа № 172. 5 минут пешей ходьбы≈370 м. Вечерняя сменная общеобразовательная школа № 1. 5 минут пешей ходьбы≈396 м. Средняя общеобразовательная школа № 120. 5 минут пешей ходьбы≈397 м. Средняя общеобразовательная школа № 24. 10 минут пешей ходьбы ≈501 м. Мкдоу детский сад № 466 комбинированного вида Незабудка. 10 минут пешей ходьбы≈581 м. Один собственник взрослый. Нет обременений. Код пользователя: 177207. Номер в базе: 10091148.