Расположение
Новосибирск, Советский район
Улица Золотодолинская
Микрорайон Академгородок (верхняя зона)
Местоположение
Дом
Квартира
Контакты
- Новосибирск
- Советский район
- Улица Золотодолинская
- Микрорайон Академгородок (верхняя зона)
- Этаж 2/4
- Материал Кирпич
- Год постройки 2000-2010
- Все квартиры в этом доме
- Общая площадь 312 м2
- Жилая площадь 132 м2
- Площадь кухни 45 м2
- Агентство ЖИЛФОНД
- Татьяна Михайловна
- +7 (960) 793-43-85 Написать
- Дом
- Этаж: 2/4
- Материал: Кирпич
- Год постройки: 2000-2010
Квартира
- Общая площадь: 312 м2
- Жилая площадь: 132 м2
- Площадь кухни: 45 м2
Агентство ЖИЛФОНД
Татьяна Михайловна +7 (960) 793-43-85
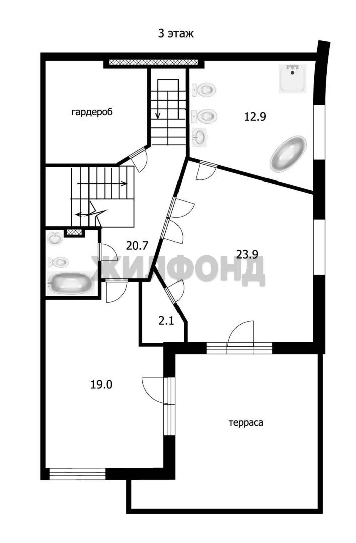
6 комн. квартира по ул. Золотодолинская. Общей площадью: 312.00 кв.м. Элитная трёхуровневая квартира с террасой, хаммамом и камином в Академгородке (Новосибирск) Продаётся уникальная квартира площадью 312 кв.м в 4-этажном доме клубного формата, расположенном в Советском районе г. Новосибирска, верхняя зона Академгородка. Это редкий формат резиденция в центре Академгородка, объединяющая статус, комфорт и природу. Локация Престижный, экологичный район с развитой инфраструктурой: лицей №130, НГУ, ботанический сад, знаменитый Пруд с Утками, семейный центр Солнечный город, магазины и многое другое. Планировка и интерьер 3 уровня, 312 кв.м, ремонт в современном классическом стиле. Просторная терраса с BBQ-зоной и видом на ботанический сад. Камин, витражные мозаики, авторские элементы декора. Хаммам, сауна, спортзал, кинотеатр на мансардном этаже. Подземный паркинг на 2 автомобиля входит в стоимость. Планировка: 1 этаж: кухня-гостиная с камином, кабинет, гардеробная, постирочная, санузел. 2 этаж: мастер-спальня с ванной (джакузи, душевая кабина, биде), детская с отдельным санузлом., мастер-спальня и детская с выходом на террасу. 3 этаж: спальня, зона отдыха, кинотеатр, хаммам, сауна, санузел, спортзал, библиотека, бар. Комфорт В каждой комнате видеодомофон, кондиционер, система вентиляции Тион, водонагреватели, тёплые полы. Кухня оборудована встроенной техникой Siеmеns: духовой шкаф, варочная панель, встроенные холодильник и морозильная камера, посудомоечная машина, микроволновая печь. Преимущества для нового владельца: Редкий формат дом в квартире в Академгородке. Готовое решение без вложений, с премиальной отделкой и оборудованием. Приватность, безопасность, высокий статус района. Высокая ликвидность и потенциал капитализации. Резиденция в Академгородке - дом, созданный для тех, кто выбирает качество, интеллект и гармонию. Рядом с объектом находятся:3 школы,3 детских сада,1 продуктовый магазин,2 спортивных учреждения,2 гимназии,1 лицей. Возможен обмен на вашу недвижимость. Возможна продажа в рассрочку. При звонке, пожалуйста, сообщите номер варианта - JV006054100247