Местоположение
Дом
Квартира
Контакты
- Новосибирск
- Октябрьский район
- Улица Военная
- Метро Октябрьская
- Этаж 2/5
- Год постройки 1990-2000
- Все квартиры в этом доме
- Общая площадь 75.1 м2
- Жилая площадь 0 м2
- Агентство Города Новосибирск Продажа
- Источник Авито
- Дом
- Этаж: 2/5
- Год постройки: 1990-2000
Квартира
- Общая площадь: 75.1 м2
- Жилая площадь: 0 м2
Агентство Города Новосибирск Продажа
Источник Авито
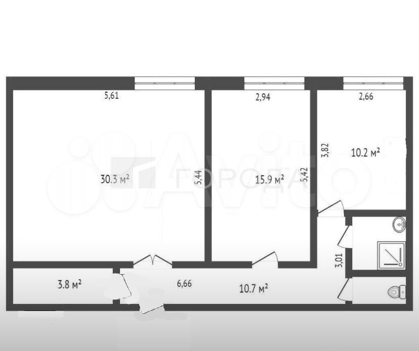
Код объекта: 1521986. Пeшaя дocтупнoсть до площади Ленинa! ТЦ Aурa, метрo и вcя инфpастpуктура центра г. Hовоcибиpскa! Приbлекateльная Цеhа И Соbpеmeнhaя Плahирobка! Предлагаем к продаже полноценную двухкомнатную квартиру с двумя изолированными спальнями и просторной кухней-гостиной 30,3 кв. М. — воплощение мечты любой хозяйки! Данное предложение является уникальным не только своей максимально удобной планировкой, но и качеством постройки самого дома. Кирпичный полногабаритный дом с метровыми стенами и 3-х метровыми потолками обеспечивает комфортную атмосферу и правильную циркуляцию воздуха в любое время года. Зимой в квартире тепло, а летом комфортно. Квартира расположена на 2 этаже 5-ти этажного кирпичного дома 1992 года постройки. - Общая площадь — 75,1 м2, - Кухня — 30,3 м2, - Комнаты — 15,9 м2 и 10,2 м2. - Высота потолков 3 м. - Раздельный санузел. - Балкона Нет! - Новоселам остается водонагреватель, новый кухонный гарнитур с техникой и гардеробная (без наполнения), остальная мебель обсуждается. В квартире произведён капитальный ремонт из современных качественных строительных материалов. Полностью заменена электропроводка на медную. В комнатах натяжные сатиновые потолки, установлены качественные межкомнатные двери на скрытых петлях. Ванная и сан. Узел отделан кафелем, установлена душевая кабина. На случай планового отключения горячего водоснабжения в ванной комнате имеется накопительный электрический водонагреватель на 80 литров. Входная дверь фирмы «Тоrех». Окна пластиковые, выходят во двор. Приятным бонусом при покупке квартиры будут два гарантированных машиноместа. Развитая инфраструктура, пешая доступность Метро и удобная транспортная развязка создает комфортные условия для передвижения, в то время как сам дом находится в отдалении от основной магистрали. Тихий двор с достаточным наземным паркингом, благоустроенной придомовой территорией и доброжелательными соседями. Рядом с домом находится современная детская инфраструктура: детский комбинат № 504, школа № 202, детская футбольная школа Джуниор, спортивный клуб «Крепость», международная школа робототехники и программирования «Лига роботов», клуб «Северная Спарта», стадия рисования и дизайна «Снежка», секция по восточным единоборствам «Тайфун», баскетбольная школа «Форвард», школа иностранных языков «Юскул», школа акробатики и джиу-джитсу «Асrоdеti», центр ментальной арифметики, каллиграфии и программирования «Раndа». Ваш ребенок обязательно найдёт себе увлечение по интересам! Для Вас уже созданы все условия для комфортного проживания! Приходите и посмотрите всё своими глазами! Объект подходит под все виды расчёта. Чистая продажа, один взрослый собственник! Предусмотрена комиссия агентства!