Расположение
Новосибирск, Калининский район
Улица Фадеева
Микрорайон Северный
Жилой комплекс На Фадеева
Местоположение
Дом
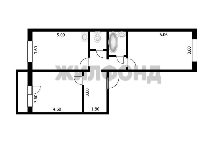
Квартира
Контакты
- Новосибирск
- Калининский район
- Улица Фадеева
- Микрорайон Северный
- Жилой комплекс На Фадеева
- Этаж 2/17
- Материал Монолит
- Год постройки 2015
- Все квартиры в этом доме
- Общая площадь 73.9 м2
- Жилая площадь 38.4 м2
- Площадь кухни 18.3 м2
- Санузел Раздельный
- Балкон / Лоджия Есть
- Агентство ЖИЛФОНД
- Ольга Викторовна
- +7 (960) 786-73-36 Написать
- Дом
- Этаж: 2/17
- Материал: Монолит
- Год постройки: 2015
Квартира
- Общая площадь: 73.9 м2
- Жилая площадь: 38.4 м2
- Площадь кухни: 18.3 м2
- Санузел: Раздельный
- Балкон / Лоджия: Есть
Агентство ЖИЛФОНД
Ольга Викторовна +7 (960) 786-73-36
2 комн. квартира по ул. Фадеева. Общей площадью: 73.90 кв.м. Продается уютная 2-комн квартира в сердце микрорайона Северный на улице Фадеева! * Дом сдан в 2016 году. Площадь квартиры составляет 73,9 м2, с продуманной планировкой на 2 стороны это действительно функционально и востребовано! С такой планировкой квартир нет в продаже на данный момент. * Описание квартиры: - Общая площадь: 73,9 м2 - Жилая площадь: 38,4 м2 - Просторная кухня: 18,3 м2 - Уютные комнаты: зал 21,8 м2 и вторая комната 16,56 м2 - Комфортная прихожая с местом для гардеробной - Лоджия 3,2 м2 дополнение к общей площади квартиры * Вы находитесь на втором этаже, что гарантирует вас независимость от лифта в любых ситуациях. Безопасность жильцов обеспечивает круглосуточное видеонаблюдение в лифтах и холлах. * Внутренние поверхности уже подготовлены: выравнены стены, в санузлах уложена плитка и установлена вся сантехника. Окна выходят на ухоженный двор с ландшафтным дизайном, спортивными площадками и зонами для прогулок. * Удобное расположение квартиры: подъезды сквозные, а вокруг вас множество удобств! В микрорайоне есть большие автопарковки, площадка для выгула животных и множество соцобъектов: - Поликлиника (взрослое и детское отделение) - Детский сад и школа - Разнообразные магазины, парикмахерские, аптеки и почта Не упустите свой шанс стать обладателем этой прекрасной квартиры! Звоните и записывайтесь на просмотр уже сегодня! Рядом с объектом находятся:1 школа,2 детских сада,5 продуктовых магазинов,1 колледж. Возможен обмен на вашу недвижимость. Возможна продажа в рассрочку. При звонке, пожалуйста, сообщите номер варианта - JV002054168514