Местоположение
Дом
Квартира
Контакты
- Новосибирск
- Центральный район
- Улица Романова
- Метро Площадь Ленина
- Этаж 9/18
- Год постройки 2012
- Все квартиры в этом доме
- Общая площадь 139 м2
- Жилая площадь 0 м2
- Агентство БК НЕДВИЖИМОСТЬ
- Источник Циан
- Дом
- Этаж: 9/18
- Год постройки: 2012
Квартира
- Общая площадь: 139 м2
- Жилая площадь: 0 м2
Агентство БК НЕДВИЖИМОСТЬ
Источник Циан
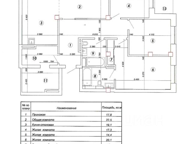
Предлагаем Вашему вниманию уютную 4-комнатную квартиру в ЖК HOUSE CLUB. Жилой комплекс расположен в самом центре нашего города. Квартира выполнена по индивидуальному проекту, где особое внимание уделили грамотному планировочному решению. В квартире можно выделить 3 зоны: 1. Входная группа состоит из: прихожей с тамбуром для обуви, вместительной гардеробной комнаты, из которой есть вход в хозяйственную комнату (с дополнительным хранением вещей и постирочной). 2. Зона кухни-гостиной площадью 42 м2 включает в себя просторную гостиную и функциональную кухню с обеденной зоной, откуда есть выход на балкон. 3. Зона спален. Три отдельные комнаты удалены от кухни-гостиной и входной группы. Мастер-спальня с просторной ванной комнатой. Две детские с французским остеклением, в одной из которых есть свой балкон. Вторая ванная комната (гостевая/детская) имеет вход из общего коридора. Каждая комната оборудована системой кондиционирования. Квартира продается с мебелью. Для обеспечения безопасности дом находится под круглосуточной охраной, установлено видеонаблюдение по периметру территории и внутри дома, закрытая придомовая территория. На закрытой территории жилого комплекса имеется большой наземный паркинг (рассчитан более чем на 40 парковочных мест). На подземном паркинге всегда имеются свободные места, которые можно арендовать или купить при необходимости. Расположение квартиры в самом центре Новосибирска открывает для вас двери в мир культурных и развлекательных возможностей. В шаговой доступности от дома находится живописный Центральный парк, где вы сможете наслаждаться прогулками на свежем воздухе и проводить время с семьей. Любители искусства оценят близость к знаменитому Театру Оперы и Балета, Новосибирскому Музыкальному театру, где можно насладиться великолепными постановками. Удобная транспортная развязка, включая пешую доступность до станций метро, позволит Вам быстро добраться в любую точку города. С удовольствием проведу показ и отвечу на дополнительные вопросы по телефону. Выбирайте для себя только самое лучшее, БК Недвижимость!