Расположение
Новосибирск, Заельцовский район
Улица Дуси Ковальчук
Метро Заельцовская
Жилой комплекс Возрождение (Покровский)
Местоположение
Дом
Квартира
Контакты
- Новосибирск
- Заельцовский район
- Улица Дуси Ковальчук
- Метро Заельцовская
- Жилой комплекс Возрождение (Покровский)
- Этаж 12/17
- Год постройки 2024
- Все квартиры в этом доме
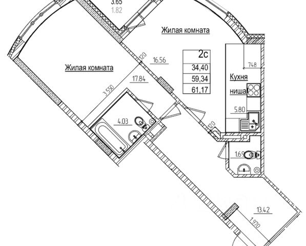
- Общая площадь 59.3 м2
- Жилая площадь 0 м2
- Агентство Дом Профи
- Источник Циан
- Дом
- Этаж: 12/17
- Год постройки: 2024
Квартира
- Общая площадь: 59.3 м2
- Жилая площадь: 0 м2
Агентство Дом Профи
Источник Циан
Предлагается к продаже готовая двухкомнатная квартира-студия, в жилом комплексе Возрождение!!! Удобная планировка с просторными комнатами позволит организовать пространство, полностью отвечающее вашим потребностям. Хороший метраж санузлов. Кирпичные толстые стены. В квартире выполнена качественная предчистовая отделка, позволяющая воплотить любой дизайн - проект. Высокие потолки, большие окна, много света. В доме установлены бесшумные скоростные лифты увеличенного размера. Места общего пользования имеют единый стильный дизайн и отделаны качественными эстетичными материалами. Круглосуточная охрана и видеонаблюдение. Ландшафтный дизайн, современные детские и спортивные площадки с травмобезопасным покрытием. Большой подземный паркинг. Дом строится в одном из лучших мест Заельцовского района: в шаговой доступности располагаются любимые места жителей Новосибирска- городской Зоопарк и Ботанический сад, станция метро Заельцовская в 10 минутах ходьбы, два детских сада, школа, на площади Калинина несколько ТРЦ, банки, аптеки, кафе. Хорошая транспортная развязка позволяет без пробок добраться в любой уголок города. Ждем ваших звонков! Поможем в получении ипотечного решения от банков партнеров!