Расположение
Новосибирск, Заельцовский район
Улица Залесского
Микрорайон Гор Больница локация
Жилой комплекс Верхний город
Местоположение
Дом
Квартира
Контакты
- Новосибирск
- Заельцовский район
- Улица Залесского
- Микрорайон Гор Больница локация
- Жилой комплекс Верхний город
- Этаж 25/26
- Год постройки 2014
- Все квартиры в этом доме
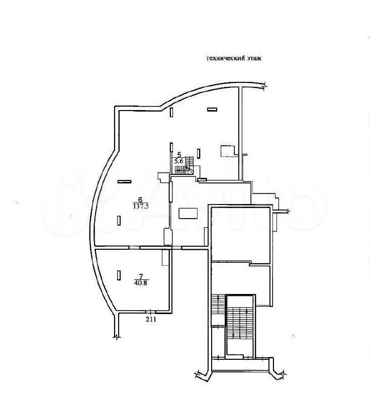
- Общая площадь 229.3 м2
- Жилая площадь 0 м2
- Агентство Поиск метров
- Источник Авито
- Дом
- Этаж: 25/26
- Год постройки: 2014
Квартира
- Общая площадь: 229.3 м2
- Жилая площадь: 0 м2
Агентство Поиск метров
Источник Авито
Предлагаем Вашему вниманию эксклюзивный вариант 2 уровневой квартиры, которая идеально подойдет для комфортной жизни и реализации Ваших дизайнерских идей. Не просто квартиру, а образ жизни — квартира, расположенная на верхних этажах жилого комплекса среди сосен, откуда открывается самый впечатляющий вид в городе. Непревзойденный вид: Панорамные окна — это ваш личный холст, на котором меняются картины рассветов, закатов и мерцающих ночных огней мегаполиса. Вид, который никогда не наскучит и всегда будет вдохновлять. Свет и пространство: Благодаря большой площади остекления, квартира залита естественным светом в течение всего дня, что создает ощущение невероятного простора и свободы. Площадь: 229,3м². Этажи: 1-й этаж — жилой, 2-й этаж — свободная планировка. Количество комнат: 2 на первом этаже. Первый этаж: На первом этаже Вас ждут две уютные комнаты, которые можно использовать как спальню и кухню- гостиную. Второй этаж: Второй этаж — это Ваш холст для творчества! Свободная планировка позволяет Вам реализовать любые идеи: создать дополнительные комнаты, студию или даже уютный уголок для отдыха. Здесь Вы можете воплотить в жизнь все свои мечты о идеальном пространстве. Дополнительные преимущества: Удобное расположение от метро с развитой инфраструктурой. До метро Заельцовская 5 минут. Возможность индивидуальной планировки второго этажа. Не упустите шанс стать владельцем этой уникальной квартиры! Звоните прямо сейчас, чтобы записаться на просмотр и узнать больше! Без занижений, обременений, 1 собственник.