Местоположение
Дом
Квартира
Контакты
- Новосибирск
- Заельцовский район
- Улица Кропоткина
- Метро Гагаринская
- Микрорайон Линейный
- Этаж 2/5
- Год постройки 1960-1970
- Все квартиры в этом доме
- Общая площадь 43.2 м2
- Жилая площадь 0 м2
- Дом
- Этаж: 2/5
- Год постройки: 1960-1970
Квартира
- Общая площадь: 43.2 м2
- Жилая площадь: 0 м2
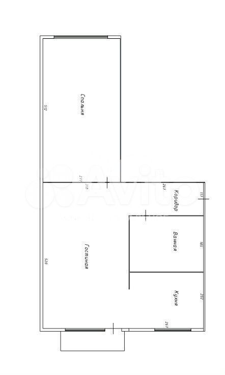
Код объекта: 2129243. Предлагается изолированная двухкомнатная квартира в одном из лучших районов города Заельцовском. Инфраструктура: — метро в 5 минутах ходьбы; — Зоопарк, Ботсад, Заельцовский парк добираться минут 15-20; — супермаркеты, большой ТЦ Ройял-парк, школы, гимназия 9, детские сады — все рядом. Дом: — находится внутри квартала — очень тихо, спокойно, без шума дорог; — УК сделала глобальный ремонт — отремонтирован и покрашен фасад, капитально отремонтирована крыша, поменяна вся внутридомовая электрика, были сделаны козырьки над подъездами, установлены лавочки и детская площадка. В подъезде установлены пластиковые окна, запланирована покраска стен. — территория дома огорожена, есть шлагбаум, жители дома паркуются во дворе. Квартира: — состояние практически идеальное — ничего по ремонту можно не делать: в ванной кафель, новая сантехника, все обои чистые. — дом газифицирован, но в квартире (так уже покупали) — газ отрезан, стоит электроплита. — таких планировок в хрущевках мало: окна на две стороны, комнаты почти изолированные, солнце в квартире весь день (одно окно выходит на юг, кухня и вторая комната — во двор, на север). Мебель: — остается практически вся (кроме кровати в спальной). — остается кухонная встроенная техника. По документам: — все идеально — покупалась за наличку, детей/стариков-собственников, обременений, занижений нет. Покажем практически в любое время по договоренности! С ипотекой и юридическим сопровождением клиенту без сопровождения АН поможем!