Местоположение
Дом
Квартира
Контакты
- Новосибирск
- Октябрьский район
- Улица Высоцкого
- Микрорайон Плющихинский
- Этаж 2/10
- Год постройки 2000-2010
- Все квартиры в этом доме
- Общая площадь 53 м2
- Жилая площадь 0 м2
- Дом
- Этаж: 2/10
- Год постройки: 2000-2010
Квартира
- Общая площадь: 53 м2
- Жилая площадь: 0 м2
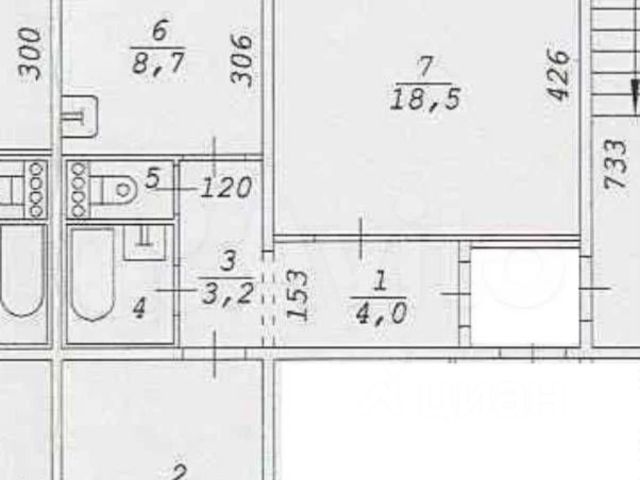
2-комнатная квартира 53 м² | Улучшенная планировка | ул. Высоцкого, 50/3 Уютная двушка улучшенной планировки (распашонка) в панельном доме 2009 года. Состояние готовое для жизни — заезжай и живи! Адрес: ул. В. Высоцкого, 50/3, Новосибирск Дом: 10 этажей, панель, 2009 г. | Этаж: 2-й (оптимальный) О КВАРТИРЕ: Общая площадь 53 кв.м Жилая площадь 32 кв.м Кухня 9 кв.м (просторная!) Комнаты 2 изолированные (распашонка) Санузел совмещённый Большая застеклённая лоджия Ремонт — готово к заселению ПОЧЕМУ ЭТО ВЫГОДНО: Распашонка — комнаты не смежные, приватность для каждого Большая лоджия — дополнительное пространство для хранения или отдыха Дом 2009 года — современные планировки, без износа Мебель остаётся — при необходимости заезжай с вещами Красивый вид из окна — приятно просыпаться утром Парковка у дома — мест достаточно, проблем нет ИНФРАСТРУКТУРА — ВСЁ РЯДОМ: • Магазины, супермаркеты — в шаговой доступности • Школы, детские сады — рядом • Поликлиники, аптеки — всё в районе • Остановки транспорта — 2-3 минуты пешком • Парки, скверы — для прогулок ЮРИДИЧЕСКАЯ ЧИСТОТА: Без обременений и долгов Полное сопровождение сделки Помощь в одобрении ипотеки со сниженной ставкой Безопасные расчёты (эскроу/аккредитив) СТОИМОСТЬ: 5 550 000₽ Торг уместен для быстрых покупателей! КАК КУПИТЬ? Не упустите уютную двушку с мебелью в развитом районе! • Звоните — отвечу на все вопросы • • Записывайтесь на просмотр — квартиру лучше увидеть лично! Добавьте в избранное, чтобы не потерять!