Расположение
Новосибирск, Заельцовский район
Улица Красный проспект
Метро Заельцовская
Жилой комплекс Тайм Парк апартаменты (ГК Расцветай)
Местоположение
Дом
Квартира
Контакты
- Новосибирск
- Заельцовский район
- Улица Красный проспект
- Метро Заельцовская
- Жилой комплекс Тайм Парк апартаменты (ГК Расцветай)
- Этаж 11/26
- Год постройки 2025
- Все квартиры в этом доме
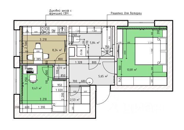
- Общая площадь 47.1 м2
- Жилая площадь 0 м2
- Агентство Новый Адрес
- Источник Циан
- Дом
- Этаж: 11/26
- Год постройки: 2025
Квартира
- Общая площадь: 47.1 м2
- Жилая площадь: 0 м2
Агентство Новый Адрес
Источник Циан
Представляем вашему вниманию уникальные апартаменты в современном жилом комплексе, расположенные в шаговой доступности от станции метро Заельцовская — всего 4 минуты пешком. Просторные двухкомнатные апартаменты площадью 47,1 кв. м находятся на 11 этаже 26-этажного монолитно-кирпичного дома, который был построен в 2025 году. Высота потолков составляет 2,7 метра, а окна выходят во двор, что обеспечит вам тишину и уют. Апартаменты предлагаются без ремонта, поэтому у вас есть отличная возможность воплотить в жизнь все свои дизайнерские идеи. Жилая площадь составляет 14 кв. м, а просторная кухня площадью 19,5 кв. м станет идеальным местом для семейных обедов и встреч с друзьями. В апартаментах есть совмещенный санузел. Дом оборудован двумя пассажирскими и двумя грузовыми лифтами, поэтому можно не беспокоиться о подъеме на этаж с тяжёлой поклажей. Жилой комплекс располагает наземной парковкой, что решает вопрос с местом для вашего автомобиля. Вокруг дома развита инфраструктура: рядом находятся школы, детские сады, клиники и магазины, что делает этот район удобным для жизни как для семей с детьми, так и для молодых специалистов. Условия сделки: продажа осуществляется по договору купли-продажи. Возможна ипотека. Все юридические документы проверены и готовы к сделке. Не упустите шанс стать владельцем этих замечательных апартаментов! Записывайтесь на просмотр и оцените все преимущества лично. Ждем вас!