Местоположение
Дом
Квартира
Контакты
- Новосибирск
- Кировский район
- Улица Тульская
- Метро Площадь Маркса
- Этаж 6/10
- Год постройки 1995-1999
- Все квартиры в этом доме
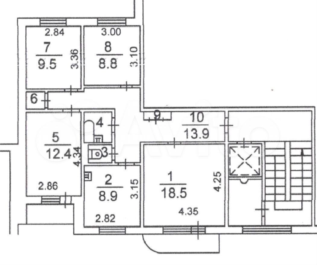
- Общая площадь 78.8 м2
- Жилая площадь 0 м2
- Агентство Татьяна Алексеевна
- Источник Авито
- Дом
- Этаж: 6/10
- Год постройки: 1995-1999
Квартира
- Общая площадь: 78.8 м2
- Жилая площадь: 0 м2
Агентство Татьяна Алексеевна
Источник Авито
Продается уютная квартира с хорошим ремонтом на 6 этаже панельного дома, построенного в 1995 году. В квартире четыре изолированные комнаты, что обеспечивает комфорт и приватность каждому члену семьи. Раздельный санузел добавляет удобства в повседневной жизни. Две лоджии станут отличным местом для отдыха на свежем воздухе. Дом оборудован пассажирским лифтом, а также имеется открытая парковка во дворе. Для активного отдыха предусмотрена спортивная площадка. Квартира находится в районе с развитой инфраструктурой: школы, поликлиники, областная больница, два сквера, спортивные центры и продуктовые магазины, ТЦ Сан-Сити, ТЦ Калейдоскоп, ТЦ Версаль, Мега. Показы по договоренности, ключи в агентстве. Помощь в получении ипотечного решения.