Местоположение
Дом
Квартира
Контакты
- Новосибирск
- Дзержинский район
- Улица Новая Заря
- Микрорайон Авиастроителей
- Этаж 3/9
- Год постройки 1980-1990
- Все квартиры в этом доме
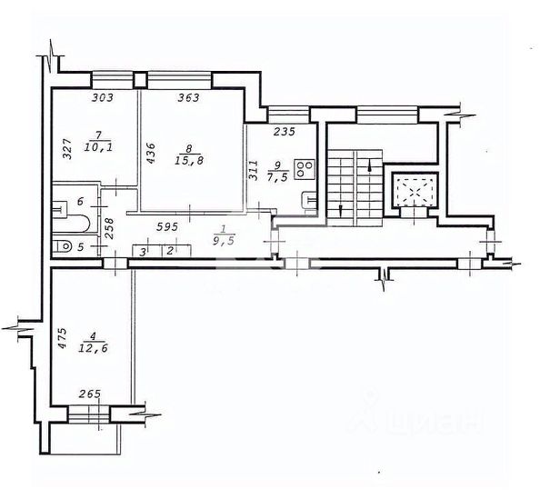
- Общая площадь 60.5 м2
- Жилая площадь 0 м2
- Дом
- Этаж: 3/9
- Год постройки: 1980-1990
Квартира
- Общая площадь: 60.5 м2
- Жилая площадь: 0 м2
Код объекта: 2084888. В чистой продаже квартира на комфортном 3 этаже в кирпичном доме, комнаты изолированные, имеется лоджия, , санузел раздельный. Три окна выходят в тихий двор, одно с лоджией на противоположенную сторону. Квартира требует ремонта, поэтому вы можете воплотить все ваши дизайнерские возможности и желания. Окна пластиковые, в ванной и санузле плитка, пол деревянный, на кухне ламинат.. Дом теплый, светлые подъезды, отсечка на две квартиры. Соседи все хорошие. Двор просторный, с детскими площадками, летом очень зеленый, наземная парковка с достаточным количеством мест. Расположение дома удачное в отдалении шумных дорог, но при этом в районе с развитой инфраструктурой . В шаговой доступности остановка транспорта, несколько школ,( одна из которых новая), детских садов, множество различных магазинов, в доме пункт выдачи заказов, детская поликлиника, аптеки и т.д. Для отдыха: ПКиО Сосновый бор, Лидер лэнд. Два взрослых собственника, чистая продажа. Звоните отвечу на ваши вопросы, договоримся о просмотре.