Местоположение
Дом
Квартира
Контакты
- Новосибирск
- Октябрьский район
- Улица Кирова
- Жилой комплекс Smart Avenue
- Этаж 22/26
- Год постройки 2022
- Все квартиры в этом доме
- Общая площадь 65.7 м2
- Жилая площадь 0 м2
- Источник Авито
- Дом
- Этаж: 22/26
- Год постройки: 2022
Квартира
- Общая площадь: 65.7 м2
- Жилая площадь: 0 м2
Источник Авито
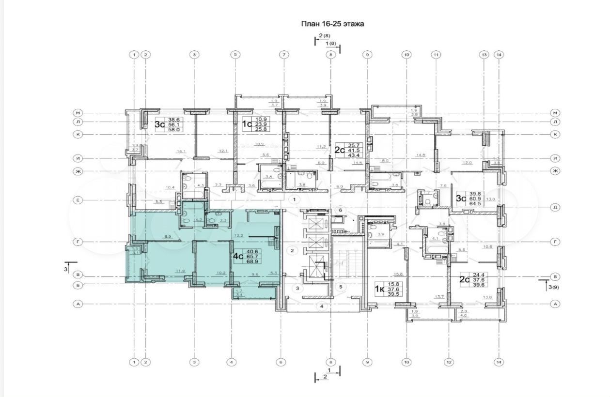
Продается просторная четырехкомнатная квартира в новом кирпичном доме. Общая площадь квартиры составляет 65.7 кв. М. Квартира расположена на 22 этаже 26-этажного дома, из окон открывается захватывающий вид на город. Высота потолков — 2.72 метра. Квартира без отделки, что дает возможность будущим владельцам воплотить в жизнь любые дизайнерские решения и создать интерьер своей мечты. Планировка включает просторную кухню площадью 15 кв. М, один совмещенный и один отдельный санузел, а также балкон и лоджию, которые станут отличным местом для отдыха. Дом новый, с современными инженерными системами и тремя пассажирскими лифтами, что обеспечивает комфортное проживание. На территории дома предусмотрена парковка, а также благоустроенные зоны для отдыха и прогулок. Жилой комплекс расположен в районе с развитой инфраструктурой. В шаговой доступности находятся школы, детские сады, клиники и магазины. До станции метро «Речной вокзал» можно добраться за 5 минут на автомобиле, что делает транспортную доступность удобной для жителей. Продажа квартиры осуществляется по договору купли-продажи. Возможна покупка в ипотеку. Квартира без обременений и готова к быстрому выходу на сделку. Приглашаем вас на просмотр, чтобы лично оценить все преимущества этой квартиры. Записывайтесь на удобное для вас время и становитесь владельцем комфортного жилья!