Местоположение
Дом
Квартира
Контакты
- Новосибирск
- Дзержинский район
- Улица Трикотажная
- Микрорайон Дзержинского пр-т
- Этаж 4/5
- Год постройки 1950-1960
- Все квартиры в этом доме
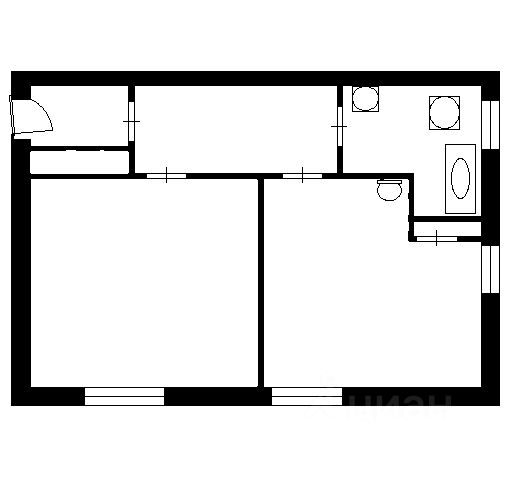
- Общая площадь 39.7 м2
- Жилая площадь 0 м2
- Дом
- Этаж: 4/5
- Год постройки: 1950-1960
Квартира
- Общая площадь: 39.7 м2
- Жилая площадь: 0 м2
Арт. 132376600 Однокомнатная квартира в Дзержинском районе Новосибирска Ищете уютное и удобное жильё в развитом районе? Эта квартира — идеальный выбор для вас! Основные характеристики: Общая площадь: 39,7 м². Большая спальня с квадратной комнатой. Правильной формы кухня. Раздельный санузел. Кладовая. Ванная комната с окном. Квартира полностью пригодна для проживания. Остаётся кухонный гарнитур, встроенный шкаф и кровать — вам не придётся тратить время и силы на обустройство жилья. Преимущества: Удобное расположение: вся инфраструктура в шаговой доступности (школы, детские сады, магазины, аптеки, поликлиники). Близость к остановке общественного транспорта — до метро Берёзовая роща можно добраться за 10 минут. Капитально отремонтированный фасад дома. В 2026 году запланирован ремонт подъездов — это дополнительная гарантия того, что дом будет поддерживаться в хорошем состоянии. Два взрослых собственника (общесовместная), обременений, долгов нет. Не упустите свой шанс стать обладателем этой замечательной квартиры! Звоните и записывайтесь на просмотр. Дополнительно оплачивается комиссия с Покупателя за юридическое оформление сделки.