Местоположение
Дом
Квартира
Контакты
- Этаж 5/6
- Год постройки 2011
- Все квартиры в этом доме
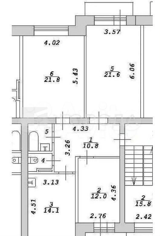
- Общая площадь 85 м2
- Жилая площадь 0 м2
- Агентство Города Новосибирск Продажа
- Источник Авито
- Дом
- Этаж: 5/6
- Год постройки: 2011
Квартира
- Общая площадь: 85 м2
- Жилая площадь: 0 м2
Агентство Города Новосибирск Продажа
Источник Авито
Код объекта: 2057824. Уникальное предложение в Новосибирске: просторная трёхкомнатная квартира на улице Ивлева, 164 — идеальное решение для вашей семьи! Квартира расположена на пятом этаже шестиэтажного кирпичного дома, построенного в 2011 году. Общая площадь составляет 85 кв. М, из которых 55,4 кв. М — жилая площадь. Три изолированные комнаты с окнами на улицу имеют площадь 21,6 кв. М, 12 кв. М и 21,8 кв. М. Кухня площадью 14,1 кв. М идеально подойдёт для приготовления любимых блюд. В квартире сделан косметический ремонт, что позволяет новым владельцам воплотить свои дизайнерские идеи. Два балкона станут отличным местом для отдыха и наслаждения видами города. Наземная парковка обеспечивает удобное размещение автомобиля. Угловое расположение квартиры гарантирует хорошую освещённость и вентиляцию. Не упустите шанс стать обладателем этой прекрасной квартиры! Позвоните нам прямо сейчас, чтобы узнать больше и записаться на просмотр. Мы гарантируем безопасную сделку и юридическую поддержку нашим Клиентам. Поможем одобрить ипотеку с сниженной ставкой.