Местоположение
Дом
Квартира
Контакты
- Новосибирск
- Кировский район
- Улица Оловозаводская
- Микрорайон Бугринская роща
- Этаж 1/5
- Год постройки 2011
- Все квартиры в этом доме
- Общая площадь 70.2 м2
- Жилая площадь 0 м2
- Агентство Рим салон недвижимости
- Источник Авито
- Дом
- Этаж: 1/5
- Год постройки: 2011
Квартира
- Общая площадь: 70.2 м2
- Жилая площадь: 0 м2
Агентство Рим салон недвижимости
Источник Авито
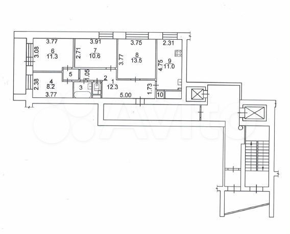
Продаётся просторная светлая 2-комнатная квартира площадью 70,2 м² (без учета лоджии) в качественном кирпичном доме классической кладки. Дом сдан в 2009 году — современное строительство с надёжными материалами и хорошими инженерными решениями. Малоэтажный формат (5 этажей) создаёт атмосферу уюта и приватности без плотной застройки. Планировка: 2 изолированные комнаты по 19 м², расположены на разные стороны; кухня 15 м² — комфортное пространство для жизни и приёма гостей; потолки 2,8 м; санузел раздельный; лоджия. Особенности квартиры: первый этаж, но дом расположен на возвышении и под квартирой цокольный этаж — нет ощущения первого этажа; солнечная сторона — квартира светлая большую часть дня; свежий косметический ремонт; экологичные деревянные окна; отличная шумо- и теплоизоляция благодаря толстым кирпичным стенам. Дом и территория: закрытый двор; детская площадка; всегда есть парковочные места (небольшое количество квартир); спокойная камерная атмосфера проживания; рядом 2 школы, детский сад, банк, отделение полиции, автобусная остановка. Документы; свободная продажа; быстрый выход на сделку; один взрослый собственник; мат. Капитал не использовался; без обременений. Вся мебель и техника остается новому владельцу. Отличный вариант для тех, кто ценит простор, тишину, надёжный дом и приватность малоэтажной застройки.