Местоположение
Дом
Квартира
Контакты
- Новосибирск
- Калининский район
- Улица Народная
- Микрорайон Богдана Хмельницкого
- Этаж 8/9
- Год постройки 2000-2010
- Все квартиры в этом доме
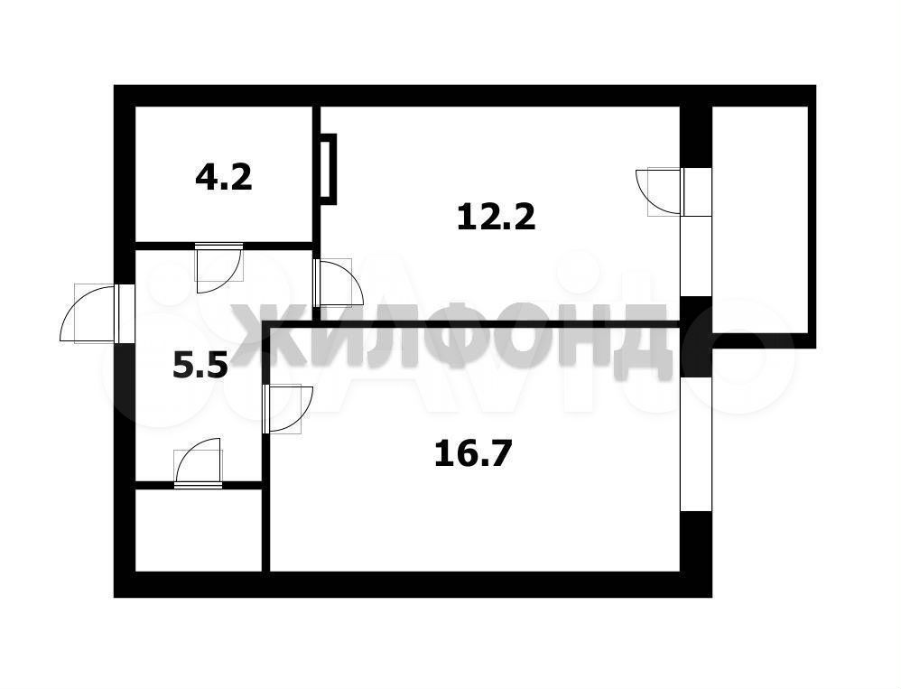
- Общая площадь 40.3 м2
- Жилая площадь 0 м2
- Дом
- Этаж: 8/9
- Год постройки: 2000-2010
Квартира
- Общая площадь: 40.3 м2
- Жилая площадь: 0 м2
Квартира с ремонтом и видовыми характеристиками в кирпичном доме. Если вы ищете квартиру, в которую можно заехать сразу — вы её нашли. Здесь не нужно считать бюджет на ремонт, ждать мастеров и жить в стройке. Почему стоит купить именно эту квартиру:8 этаж — видовые характеристики, много дневного света. Планировка эргономичная с большой кухней 12кв можно сделать гостинную, комната с гардеробной-редкое и удобное решение. Современный ремонт — аккуратно, нейтрально, без уставших решений. Натяжные потолки по всей квартире. Санузел выполнен практично и качественно. Хорошая входная и межкомнатные двери. Дом и район: Кирпичный дом — тёплый, тихий, надёжный. Остановка Учительская — удобный выезд в любой район города. Рядом всё, что нужно каждый день: магазины, пункты выдачи, медицинские центры. Сформированная инфраструктура — комфорт для жизни и стабильный спрос на аренду. Идеальный вариант для жизни без дополнительных вложений, для инвестиций — квартиру можно сдавать сразу после покупки. Такие варианты долго не задерживаются. Записывайтесь на просмотр сейчас, пока квартира в продаже. Рядом с объектом находятся: 1 школа, 3 детских сада, 14 продуктовых магазинов, 1 спортивное учреждение, 2 лицея, 1 колледж. Возможен обмен на вашу недвижимость. Возможна продажа в рассрочку. При звонке, пожалуйста, сообщите номер варианта -. JV001054198259.