Местоположение
Дом
Квартира
Контакты
- Новосибирск
- Кировский район
- Улица Зорге
- Микрорайон Затулинский
- Этаж 8/9
- Материал Кирпич
- Год постройки 1970-1980
- Все квартиры в этом доме
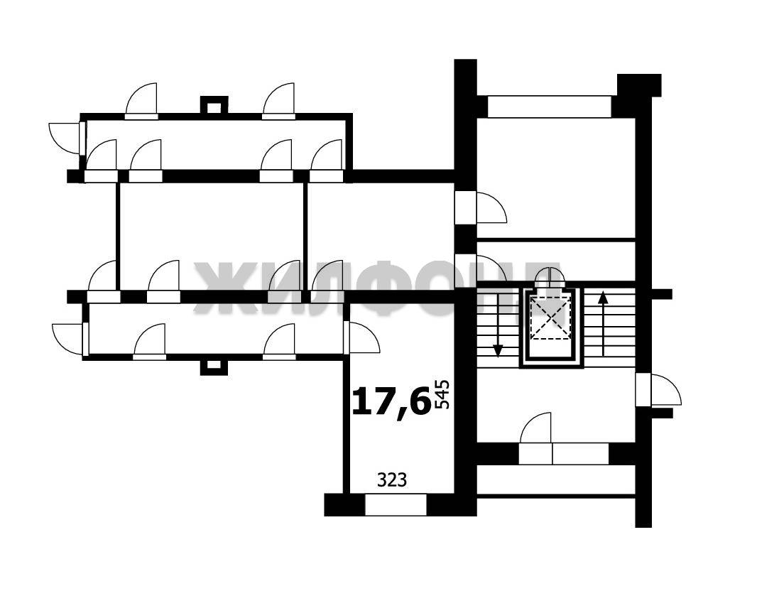
- Общая площадь 17.6 м2
- Жилая площадь 17.6 м2
- Санузел Раздельный
- Агентство ЖИЛФОНД
- Сергей Геннадьевич
- +7 (968) 221-45-38 Циан
- Дом
- Этаж: 8/9
- Материал: Кирпич
- Год постройки: 1970-1980
Квартира
- Общая площадь: 17.6 м2
- Жилая площадь: 17.6 м2
- Санузел: Раздельный
Комната по ул. Зорге. Общей площадью: 17.60 кв.м. Продается комната в общежитие на улице Зорге, дом 8. Комната находится на 8 этаже , объект подходит для проживания или для сдачи в аренду. (Дополнительно фото -по запросу) Комната укомплектована мебелью и бытовой техникой. Разделена на кухонную зону и спальню. Места общего пользования содержаться в чистоте и порядке! У нас не курят!! В шаговой доступности от общежития расположены магазины, кафе, аптеки, банки и другие необходимые объекты инфраструктуры. Рядом с домом находятся остановки общественного транспорта, что обеспечивает удобную транспортную доступность к любой точке города. В здании общежития имеются все необходимые коммуникации: центральное отопление, водоснабжение и канализация. Также есть возможность подключения кабельного телевидения и интернета. Это отличное предложение для тех, кто хочет приобрести недвижимость по доступной цене. Общежитие на улице Зорге - это удобство, комфорт и выгодное вложение средств. Не упустите свой шанс стать собственником этого объекта и наслаждаться всеми преимуществами его расположения. Звоните прямо сейчас и узнайте больше информации о данном объекте! Мы готовы ответить на все ваши вопросы и организовать просмотр объекта в удобное для вас время. Рядом с объектом находятся:2 школы,4 детских сада,11 продуктовых магазинов,1 спортивное учреждение,1 гимназия,1 колледж. Возможен обмен на вашу недвижимость. Возможна продажа в рассрочку. При звонке, пожалуйста, сообщите номер варианта - JV009054112222