Расположение
Новосибирск, Заельцовский район
Улица Красный проспект
Метро Заельцовская
Жилой комплекс Красный проспект
Местоположение
Дом
Квартира
Контакты
- Новосибирск
- Заельцовский район
- Улица Красный проспект
- Метро Заельцовская
- Жилой комплекс Красный проспект
- Этаж 15/15
- Год постройки 2019
- Все квартиры в этом доме
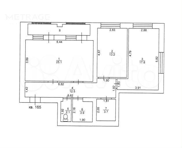
- Общая площадь 78 м2
- Жилая площадь 0 м2
- Агентство Metrage
- Источник Авито
- Дом
- Этаж: 15/15
- Год постройки: 2019
Квартира
- Общая площадь: 78 м2
- Жилая площадь: 0 м2
Агентство Metrage
Источник Авито
Арт — 27552 В продаже просторная и очень уютная 3-х комнатная квартира студия на видовом 15 -ом этаже. Функциональная планировка: две изолированные комнаты, кухня-гостиная с выходом на лоджию, раздельный санузел и гардеробная. Окна выходят на две стороны, откуда открывается прекрасный вид на город. Высота потолков 3м, расширенные оконные проемы, много света. Квартира в отличном состоянии, полностью готова для проживания. Свежий, современный ремонт из качественных материалов. Вся мебель и техника остаётся новым собственникам. Кирпичный дом, класса комфорт-плюс. Территория полностью огорожена, круглосуточная охрана и видеонаблюдение. Двор с зелеными насаждениями, зонами отдыха и детскими площадками. Своя управляющая компания. Дом расположен на второй линии, вдали от дороги. Отдельный заезд на паркинг со стороны Красного проспекта. Метро Заельцовская в 10 минутах ходьбы. Удобная транспортная развязка, позволяет с комфортом добраться практически в любую точку в городе, как на машине, так и на общественном транспорте. Без занижения, без обременения. Звоните, обязательно договоримся о просмотре! Дополнительно взимается комиссия с покупателя.