Расположение
Новосибирск, Кировский район
Улица Петухова
Микрорайон Затулинский
Жилой комплекс Кировский
Местоположение
Дом
Квартира
Контакты
- Новосибирск
- Кировский район
- Улица Петухова
- Микрорайон Затулинский
- Жилой комплекс Кировский
- Этаж 17/17
- Год постройки 2014
- Все квартиры в этом доме
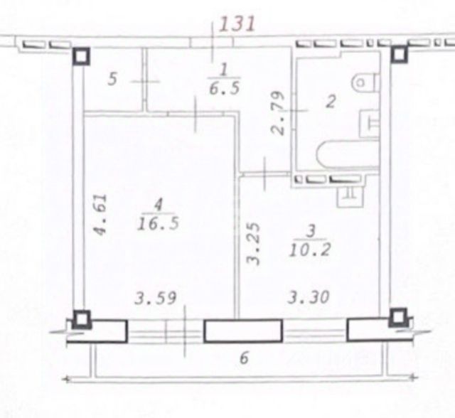
- Общая площадь 40 м2
- Жилая площадь 0 м2
- Дом
- Этаж: 17/17
- Год постройки: 2014
Квартира
- Общая площадь: 40 м2
- Жилая площадь: 0 м2
Арт. 129217730 Представляем уютную однокомнатную квартиру площадью 40 квадратных метров, расположенную в кирпичном доме . Квартира находится на 17-м, последнем этаже, что обеспечивает прекрасный вид на город и отсутствие шума от соседей сверху, есть технический этаж. Кирпичные стены гарантируют отличную звукоизоляцию и сохранение тепла. Это идеальный вариант для тех, кто ценит комфорт, спокойствие и панорамные виды. В квартире остается практически все необходимое, что позволит Вам сэкономить деньги и время. заезжай и живи. В подъезде и на территории дома ведется видеонаблюдение. Район с развитой инфраструктурой, имеется все необходимое для жизни. На общественном транспорте можно легко добраться до ст. метро К. Маркса. Данный объект можно приобрести по ставке 12.25%