Местоположение
Дом
Квартира
Контакты
- Новосибирск
- НСО район
- Улица Тесла
- Микрорайон Ложок поселок
- Этаж 1/4
- Год постройки 2022
- Все квартиры в этом доме
- Общая площадь 70.8 м2
- Жилая площадь 0 м2
- Агентство МакроМир
- Источник Циан
- Дом
- Этаж: 1/4
- Год постройки: 2022
Квартира
- Общая площадь: 70.8 м2
- Жилая площадь: 0 м2
Агентство МакроМир
Источник Циан
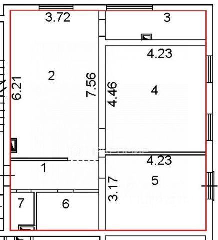
Арт. 118360892 Благодарим вас за проявленный интерес к нашей квартире! Для прямых клиентов доступна СЕМЕЙНАЯ И ИТ- ИПОТЕКА Идеальное сочетание природы и города — квартира рядом с лесом, в окружении тишины, чистого воздуха и при этом с удобной транспортной доступностью. Дом располагается в закрытом поселке, въезд на территорию только по приглашению собственников. В доме 4 этажа, на каждом этаже всего 4 квартиры, нет студий и 1 квартир, дом построен из экологичного и теплого материала - все это делает дом максимально привлекательным для проживания. Квартира находится на 2 этаже, окна выходят во двор. Изолированные комнаты правильной квадратной формы- позволят эргономично разместить мебель. Планировка квартиры, 3 - студия: Площадь: общая 70,8 м2, - комнаты 13,4 м2, и 18,9 м2. - комнаты правильной планировки, что позволит вам эргономично разместить мебель, - просторная кухня- гостиная площадью 23,1 м2 располагается отдельно от комнат, - раздельный санузел площадью 4,1 м2 и 1,4 м2. - в квартире просторный коридор площадью 4 м2, можно установить вместительный шкаф-купе- возможность для хранения сезонных вещей. -просторный балкон - лоджия, площадью 5,4 м2. Характеристики квартиры: - квартира под ремонт, Мы твёрдо верим, что ДОМ должен быть ВАШ, только вы знаете свои предпочтения. - вид из квартиры на придомовую территорию и лесной массив. - теплая и светлая квартира - сохранит тепло зимой, а летом вы будете чувствовать легкую прохладу. - Деревянный конструктив сохраняющий тепло, не излучающий радиационного фона, отсутствие синдрома дефицита магнитного поля Земли Прилегающая территория и дом - Дом находится на возвышении, все дома в округе располагаются ниже уровня взгляда. - На придомовой территории выделено место под беседку с мангальной зоной, казаном и коптильней. -Через дорогу располагается живописный лес с милейшими обитателями: зайцами и белками. Богат грибами и ягодами. Документация: Чистая продажа, без встречные вариантов. Отсутствуют обременения и аресты. СЕМЕЙНАЯ, ИТ, Военная- ипотека - ДЕЙСТВУЮТ! Квартира подходит под ипотеку, в том числе с использованием материнского капитала. Помогу получить ипотеку любой сложности. Дополнительно оплачивается комиссия покупателя. Также есть планировка квартиры 76 квм подробнее на консультации Звоните и приходите на просмотр уже сегодня! Мы уверены, что вам понравится этот вариант и вы сможете найти свой новый дом в этой прекрасной квартире. Сообщения отключены, связываться только по звонку. Из- за переадресации вызова соединение может занять до 30 секунд, дождитесь ответа специалиста.