Местоположение
Дом
Квартира
Контакты
- Новосибирск
- Заельцовский район
- Улица Дуси Ковальчук
- Метро Заельцовская
- Этаж 2/9
- Год постройки 1980-1990
- Все квартиры в этом доме
- Общая площадь 62 м2
- Жилая площадь 0 м2
- Агентство НСК-top
- Источник Циан
- Дом
- Этаж: 2/9
- Год постройки: 1980-1990
Квартира
- Общая площадь: 62 м2
- Жилая площадь: 0 м2
Агентство НСК-top
Источник Циан
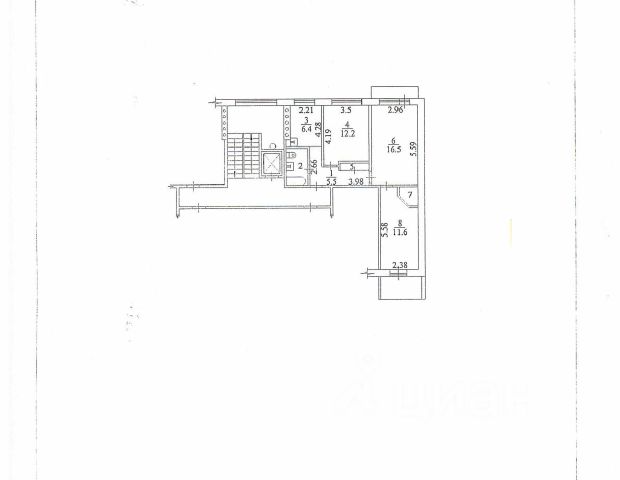
Срочно !!! Предлагается к продаже уютная трехкомнатная квартира площадью 59,9 квадратных метров на 2 этаже! Расположение: Квартира находится в спокойном районе с развитой инфраструктурой. Площадь Калинина. Вся транспортная развязка! В шаговой доступности школы Гимназия 9 , детские сады, магазины, остановки общественного транспорта. До метро 3 минуты пешком! Планировка: Квартира имеет удобную планировку с тремя изолированными комнатами, что позволяет комфортно разместиться большой семье. Санузел совмещенный. Балкон + лоджия в спальне. В квартире возможно оставить всю мебель, по Вашему желанию. Юридическая информация: Квартира принадлежит одному собственнику с 2009 года, ипотеки нет, материнский капитал не использовался, обременений нет. Дополнительные преимущества: - Работающее ТСЖ - В подъезде установлен домофон и видеонаблюдение - Рядом с домом есть удобная парковка - Вокруг дома расположены зеленые зоны - Магазины - Пункты выдачи товаров - ТЦ Роял Парк Встречный вариант для себя уже подобран. Готовы обсудить ваши предложения по торгу, звоните , предлагайте!!! Дополнительно оплачивается комиссия АН.