Местоположение
Дом
Квартира
Контакты
- Новосибирск
- Кировский район
- Улица Зорге
- Микрорайон Затулинский
- Этаж 2/9
- Год постройки 1980-1990
- Все квартиры в этом доме
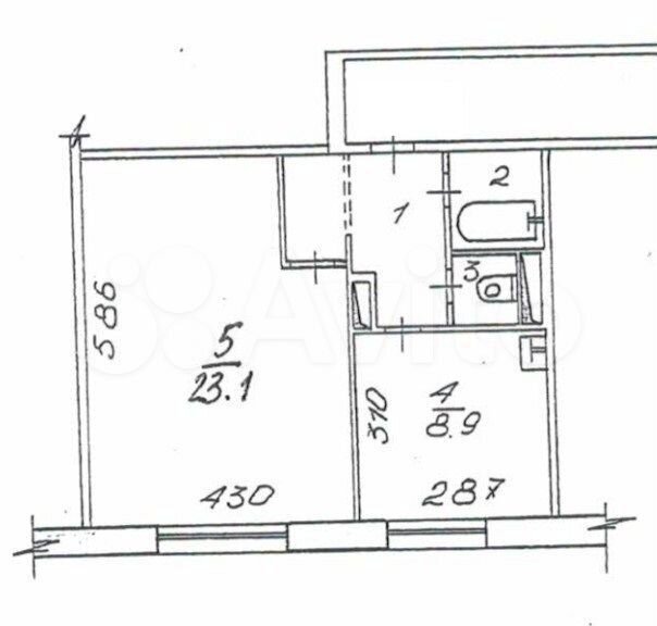
- Общая площадь 40.4 м2
- Жилая площадь 0 м2
- Агентство Прометей
- Источник Авито
- Дом
- Этаж: 2/9
- Год постройки: 1980-1990
Квартира
- Общая площадь: 40.4 м2
- Жилая площадь: 0 м2
Агентство Прометей
Источник Авито
Если Вы ищете комфорт, тишину и спокойствие, желаете жить в доме с развитой инфраструктурой — Это Ваш вариант! В продаже уютная 2-комнатная квартира (по документам 1-комнатная) на 2 этаже 9-этажного дома в Кировском районе Затулинского жилмассива города Новосибирска. Окна выходят во внутреннюю часть двора, поэтому в квартире тихо и спокойно. Балкона нет, зато есть кладовая тут же на этаже. Для удобства проживания в жилой комнате 23,1 кв. М установлена перегородка, которая делит её на 2 изолированные комнаты. У вашего ребёнка будет своя комната! В квартире в 2025 году уже выполнили косметический ремонт: поменяли обои, смонтировали натяжные потолки, установили новые межкомнатные двери. Новый кухонный гарнитур со встроенной варочной поверхностью, а также новый кондиционер остаётся для Вас! Санузел раздельный, для ремонта ванной приобретены строительные материалы. Места общего пользования в доме в хорошем состоянии. Есть пассажирский лифт и мусоропровод, что делает проживание особенно комфортным. Для Вашего авто всегда найдётся свободное парковочное место возле дома. Расположение дома очень удобно, всё рядом: несколько школ, детские сады, поликлиника, почтовое отделение, магазины и супермаркеты, кинотеатр «Рассвет», Ледовая арена, плавательный бассейн, Дом творчества «Кировский», православный храм, сквер, парк культуры и отдыха, остановки общественного транспорта. Один собственник более 5 лет. Без обременений. Приходите на просмотр, Вам понравится! При покупке Этой квартиры выдается сертификат на скидку в магазин Ноff на сумму 50 000 рублей, что станет для Вас приятным бонусом. При покупке данного объекта предусмотрена комиссия агентства. Помощь в получении положительного решения по ипотеке, даже в сложных случаях.