Местоположение
Дом
Квартира
Контакты
- Новосибирск
- Кировский район
- Улица Зорге
- Микрорайон Затулинский
- Этаж 2/5
- Год постройки 1970-1980
- Все квартиры в этом доме
- Общая площадь 48.5 м2
- Жилая площадь 0 м2
- Дом
- Этаж: 2/5
- Год постройки: 1970-1980
Квартира
- Общая площадь: 48.5 м2
- Жилая площадь: 0 м2
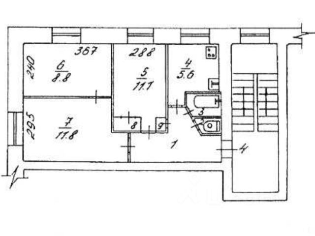
Продается квартира, 48,5 кв. м, г. Новосибирск, ул. Зорге, д. 179/1. Количество комнат: 3 Этаж: 2/5 Тип дома: кирпичный. Год постройки: 1975 г. Общая площадь: 48,5 кв.м. Жилая площадь: 31,7 кв.м. Площадь кухни: 5,6 кв.м. Санузел: раздельный. Наличие балкона: нет. Наличие лифта: нет. Ремонт: информация отсутствует. Квартира расположена в Затулинском жилмассиве Кировского района. Тихое место, насыщенное парками, скверами, спортивными площадками, детскими садами, школами, магазинами. Рядом с домом расположены стадион, бассейн, крытый каток, кинотеатр. Территория дома хорошо благоустроена. В шаговой доступности остановка общественного транспорта. Существующие обременения: проживание и регистрация третьих лиц. Способ продажи: прямая продажа, покупка за счет собственных/ кредитных средств. Сделка может быть зарегистрирована с использованием сервиса электронной регистрации. Условия реализации можно уточнить по телефону.