Местоположение
Дом
Квартира
Контакты
- Новосибирск
- Дзержинский район
- Улица Дзержинского проспект
- Микрорайон Сад Дзержинского
- Этаж 2/4
- Материал Кирпич
- Год постройки 1950-1960
- Все квартиры в этом доме
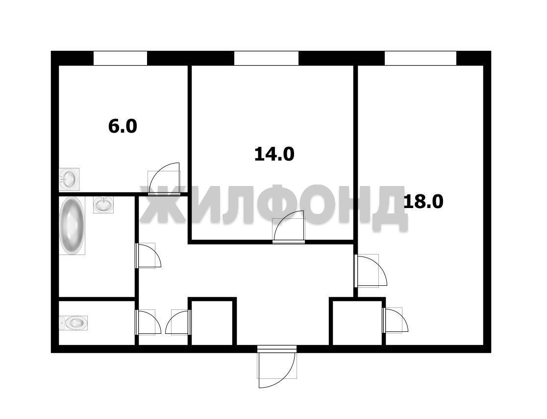
- Общая площадь 56.7 м2
- Жилая площадь 35 м2
- Площадь кухни 6 м2
- Санузел Совмещенный
- Агентство ЖИЛФОНД
- Анна Александровна
- +7 (960) 788-26-96 Написать
- Дом
- Этаж: 2/4
- Материал: Кирпич
- Год постройки: 1950-1960
Квартира
- Общая площадь: 56.7 м2
- Жилая площадь: 35 м2
- Площадь кухни: 6 м2
- Санузел: Совмещенный
Агентство ЖИЛФОНД
Анна Александровна +7 (960) 788-26-96
2 комн. квартира по ул. Дзержинского проспект. Общей площадью: 56.70 кв.м. Выгодное предложение по разумной цене! Идеальный выбор для: Молодых семей, планирующих сделать ремонт по своему вкусу. Инвесторов, ищущих выгодный объект для последующей перепродажи. Творческих личностей, желающих создать уникальное пространство. Практичных покупателей, ценящих возможность реализовать собственные дизайнерские идеи. Преимущества: Второй этаж - самый удачный для домов без лифта. Высокие потолки создают ощущение простора и свободы, а также открывают широкие возможности для дизайнерских решений. Изолированные комнаты обеспечивают максимальный комфорт и уединение для каждого члена семьи. Цена ниже рыночной — отличное вложение средств с возможностью существенного увеличения стоимости после ремонта Удобное расположение, отличная транспортная доступность, развитая инфраструктура: рядом парк, школы, детские сады, магазины и развлекательные центры. ПРИГЛАШАЕМ НА ПРОСМОТР! Рядом с объектом находятся:2 школы,2 детских сада,10 продуктовых магазинов,1 спортивное учреждение. Возможен обмен на вашу недвижимость. Возможна продажа в рассрочку. При звонке, пожалуйста, сообщите номер варианта - JV002054176185