Местоположение
Дом
Квартира
Контакты
- Новосибирск
- Октябрьский район
- Улица Добролюбова
- Метро Золотая Нива
- Этаж 21/25
- Год постройки 2022
- Все квартиры в этом доме
- Общая площадь 62.6 м2
- Жилая площадь 0 м2
- Агентство АН "Хорошие люди"
- Источник Авито
- Дом
- Этаж: 21/25
- Год постройки: 2022
Квартира
- Общая площадь: 62.6 м2
- Жилая площадь: 0 м2
Агентство АН "Хорошие люди"
Источник Авито
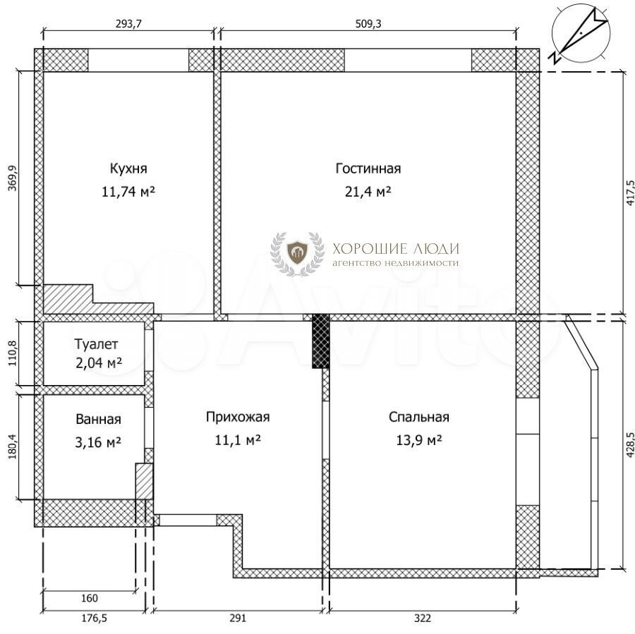
Видовая 2-комнатная квартира у метро! Квартира расположена на 21 этаже 25-этажного дома, что обеспечивает шикарный вид на город и Обь. Общая площадь — 62.6 м2, жилая — 35,3 м2. · кухня — 11,74 м2. · гостиная — 21,4 м2. · спальная — 13,9 м2. · прихожая — 11,1 м2. · ванная — 3,16 м2. · туалет — 2,04 м2. Потолки — 2,8 м. Предчистовая отделка — уникальная возможность создать уют по собственному вкусу. Комнаты изолированные, санузел раздельный. Окна выходят на две стороны: юго-восток и юго-запад, застекленный балкон с видом на реку и закат. Дом кирпичный (сдан в 2022г.) на два подъезда, два пассажирских и один грузовой лифт, подземная и наземная парковка, охрана на первом этаже, видеонаблюдение, огороженная территория, обустроенная детская и спортивная площадка. Дом находится в благоустроенном районе с развитой инфраструктурой. В пешей доступности расположены: магазины, детские сады, школы, вузы, Мфц, аптеки, банки и другие необходимые объекты. Рядом есть скверы, набережная р. Обь, где можно прогуляться и насладиться природой. Удобная транспортная развязка позволит быстро добраться до любой точки города. До метро Речной Вокзал, Октябрьская, ж/д станция Новосибирск-Южный — 15 мин. Пешком, остановки общественного транспорта — 3 мин. Один взрослый собственник. Чистая продажа. Звоните — покажем!