Местоположение
Дом
Квартира
Контакты
- Новосибирская область
- Бердск
- Улица Ленина
- Этаж 3/4
- Материал Кирпич
- Все квартиры в этом доме
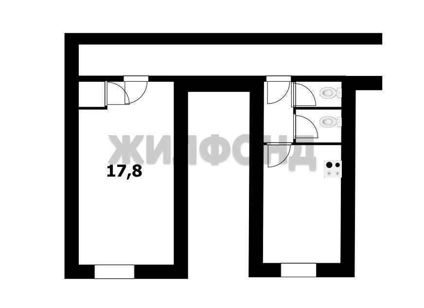
- Общая площадь 17.8 м2
- Жилая площадь 17.8 м2
- Санузел Раздельный
- Агентство ЖИЛФОНД
- Константин Николаевич
- +7 (962) 836-75-11 Написать
- Дом
- Этаж: 3/4
- Материал: Кирпич
Квартира
- Общая площадь: 17.8 м2
- Жилая площадь: 17.8 м2
- Санузел: Раздельный
Агентство ЖИЛФОНД
Константин Николаевич +7 (962) 836-75-11
Комната по ул. Ленина. Общей площадью: 17.80 кв.м. Продается комната 18,4 м2 в самом центре города Бердска по улице Ленина, дом 40. Общежитие имеет четыре этажа, комната расположена на комфортном третьем этаже. В комнату проведена вода. Обустроена кухонная зона. Рядом с общежитием - развитая инфраструктура, что делает его идеальным вариантом для тех, кто ищет недорогое и удобное жилье. В шаговой доступности есть магазины, аптеки, банки, кафе и рестораны, в 10 минутах ходьбы-железнодорожный вокзал. Для тех, кто предпочитает активный образ жизни, в непосредственной близости от общежития находятся парки и спортивные площадки. Общественный транспорт в городе развит хорошо, поэтому добраться до любой точки города будет легко и быстро. Рядом с общежитием находятся остановки автобусов и маршруток, а также железнодорожная станция. Цена комнаты составляет всего 1 100 000 рублей, что делает его очень привлекательным вариантом для тех, кто ищет недорогое жилье в удобном районе. Комната подойдет как для одинокого человека, молодой семье, как первый вариант недорогого жилья, так и для сдачи в аренду. Не упустите возможность приобрести уютное жилье по выгодной цене в самом центре города. Документы к продаже готовы, быстрый выход на сделку. Звоните прямо сейчас и приходите на просмотр! Рядом с объектом находятся:1 школа,4 детских сада,16 продуктовых магазинов,6 спортивных учреждений,1 лицей,2 колледжа. Возможен обмен на вашу недвижимость. Возможна продажа в рассрочку. При звонке, пожалуйста, сообщите номер варианта - JV009054113307